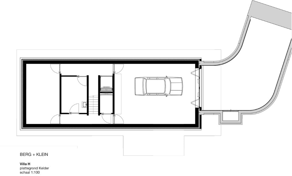
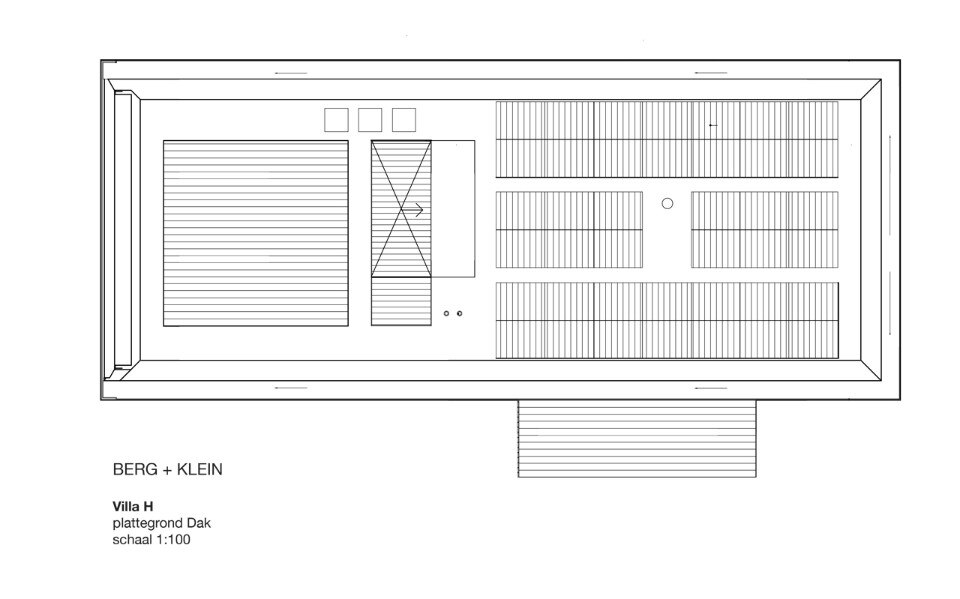
Berg + Klein designed a loft in the landscape in the dunes of the Hoek van Holland, Rotterdam, the Netherlands. The basic idea of Villa H was to have an open floor plan, a view and limited but very specific spaces. Villa H is a horizontal design with one vertical element, a staircase in between two concrete walls that links the sous-terrain, the bel etage and the rooftop terrace. Important for the design are the cantilevered edges of the house that give it a horizontal articulation and that frame the landscape between the floor and the ceiling when you look from the inside out.
View gallery
The construction of the house is 80% concrete moulded on site. The walls of the sous-terrain and the vertical walls at both sides of the staircase are exposed concrete. To have the best possible result of concrete moulding for the nine meters high bearing walls, a horizontal wooden mould was made on site. The walls were moulded horizontally and later, with the use of two cranes, placed in the centre of the house. Wooden Brise-soleils that can slide along the entire perimeter of the house in between the cantilevered roof and floor provide shade were needed most and provide privacy to the open bath room and bedroom.
- Project:
- Villa H
- Location:
- Rotterdam
- Architect:
- Berg + Klein
- Structural engineering:
- B2CO, Richard Fielt
- Building physics and BIM:
- BouwNext, Ben Hartman, Thomas van Helden
- Contractor:
- Zwarts Bouwbedrijf
