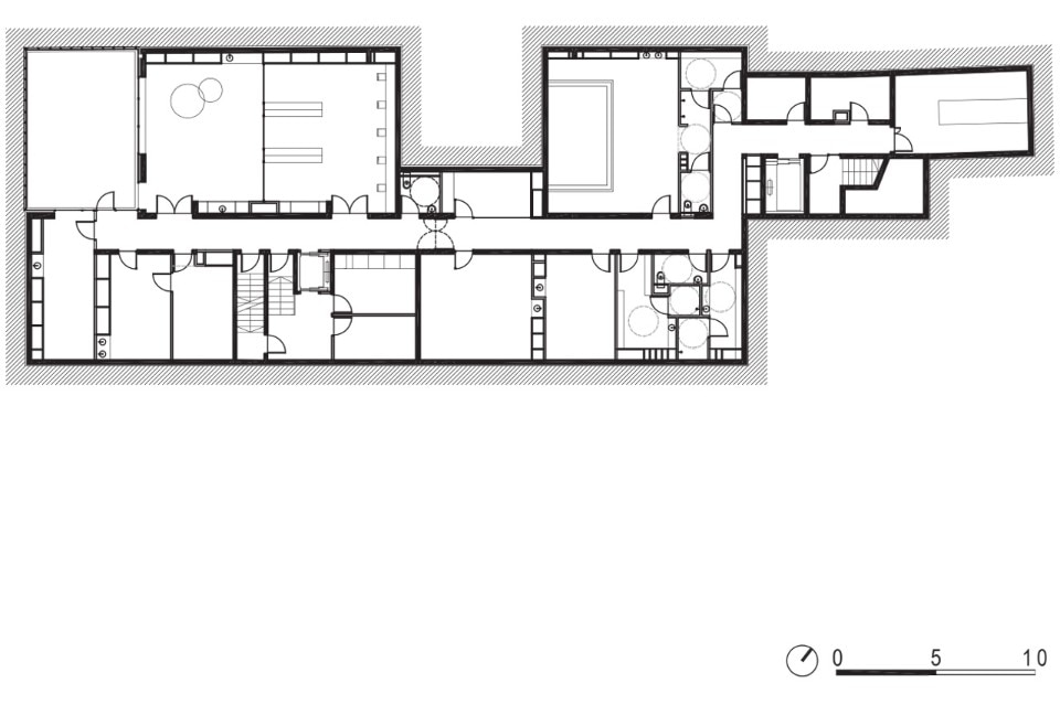
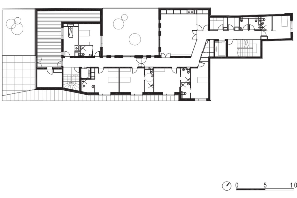
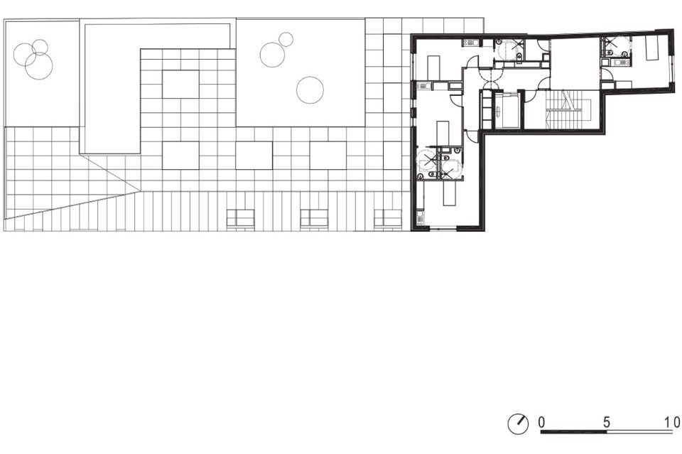
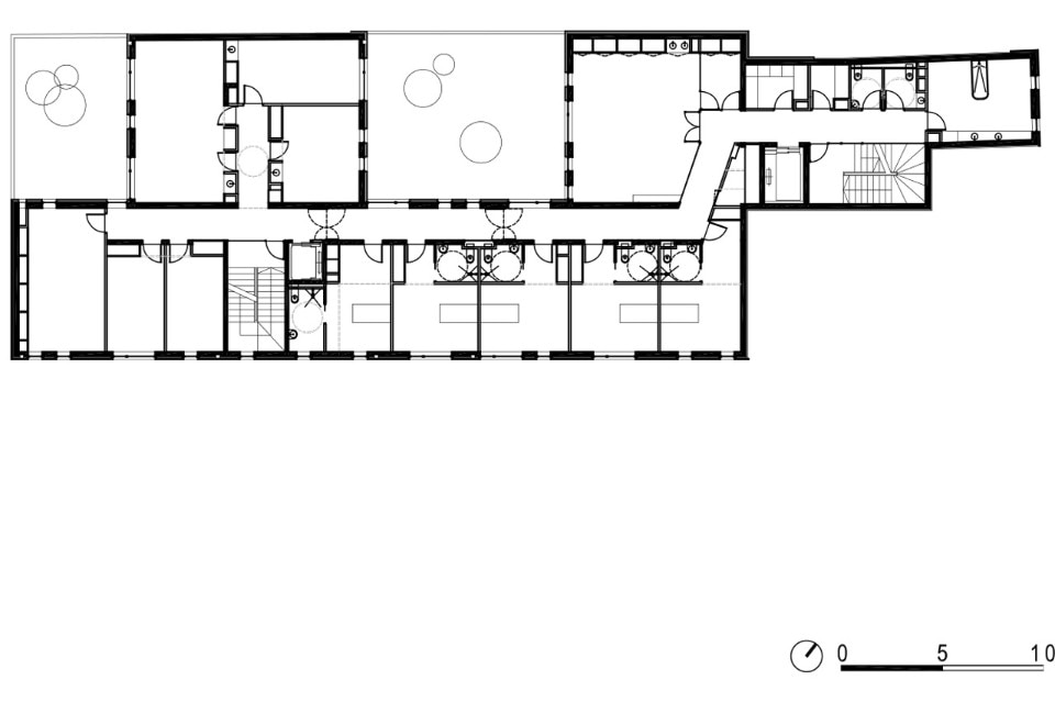
26 housing units have been distributed on the upper floors, feeling that ground-floor bedrooms would not be agreeable.
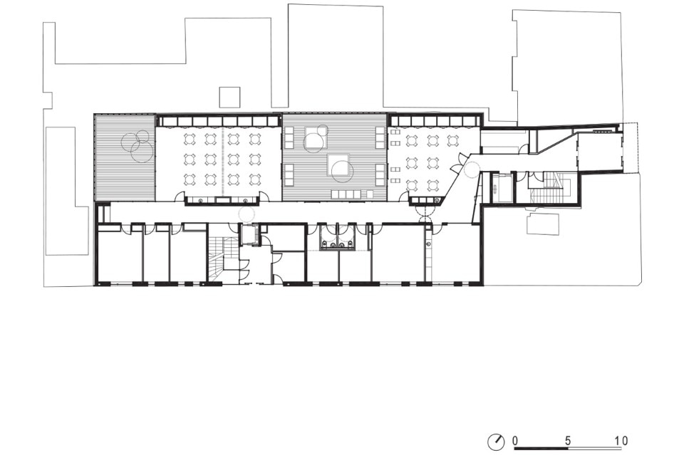
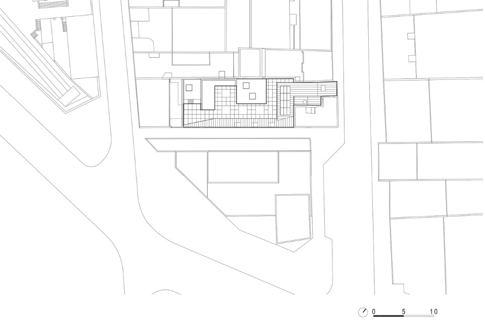
Résidence Planchette
Program: medical reception center for disabled persons
Architects: AZC
Project Team: Grégoire Zündel, Irina Cristea, Valentine Jamet, Stefano Lunardi, Cécile Conduché
Engeneering: OTE ingénierie
Client: Elogie
Area: 2.250 sqm
Completion: 2015
