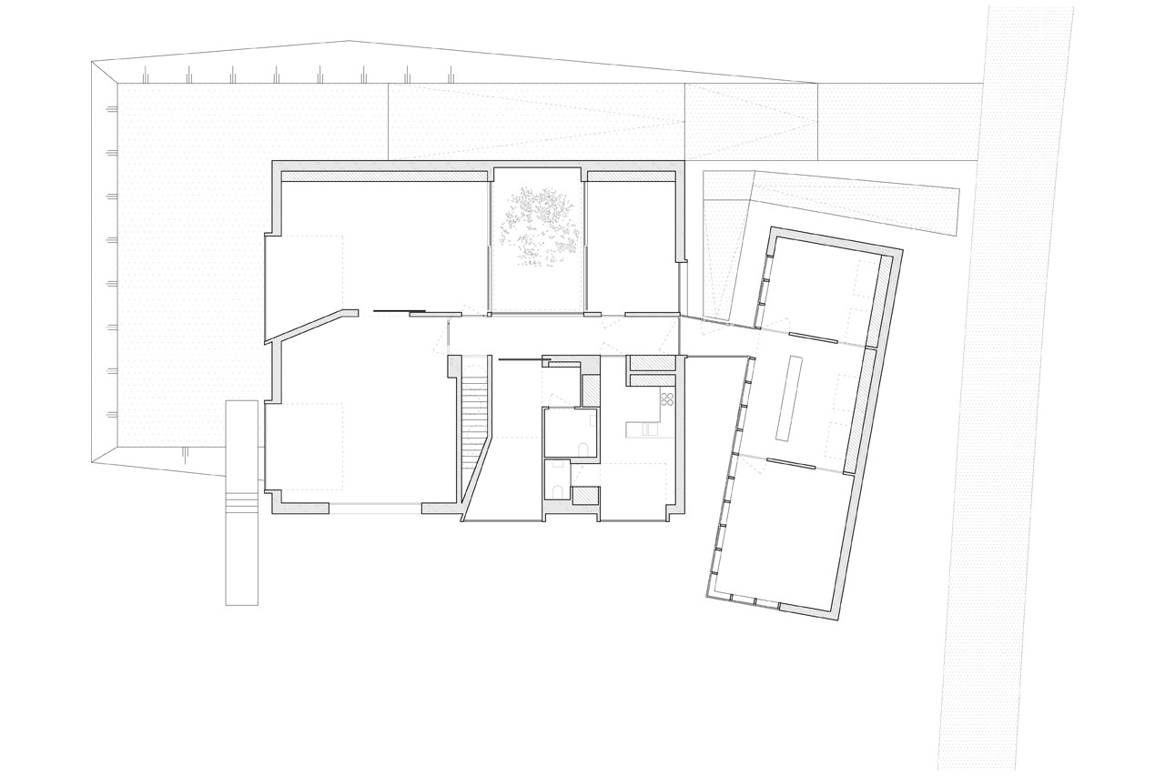
The extension is not only physically, but also visually connected with the existing office. By hemming the windows with a white line, just as in the original building, the idea of connection is created within a predominantly contrasting concept. The simple and repetitive nature of the wooden construction in Oregon Pine contrasts with the solid brick main volume. But the powerful reflective facade surpasses all these thoughtful touches.
The refined details are needed to let the volume radiate tranquility and to blend into the surrounding landscape. The mirrored volume continues the surrounding reality of trees and slopes. The slight swarm in the stainless steel cladding makes the design disappear into nothing, like a fluid. This alienating effect also ensures that the expression of the original building will remain.
View gallery
Notariaat 2.0, Continuous Landscape, Horebeke, Belgium
Program: office
Architects: Atelier Vens Vanbelle
Photographer: Tim Van de Velde
Completion: 2015
