results
No results
Please enter a long search term
House in Sayama
For this small house near Osaka, Japan, Coo Planning looks for a strong relationship with nature through the use of natural materials and the opening of large windows.
This small house in the town of Sayama, in Osaka, Japan, sits in a quiet neighborhood and was designed for a couple and their two-child by the Osaka-based firm Coo Planning.
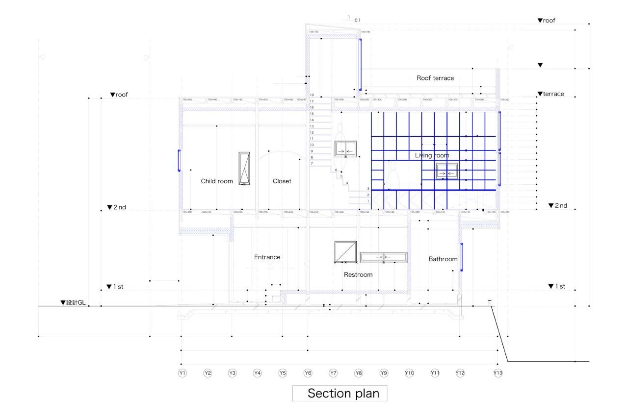
Built entirely with wood, the residence is minimal with the needed space spread throughout three layers. A living room on the second floor has the double ceiling height. A big window open on the south side faces a pond near the house. In this way, nature can be felt from the interior: it is a small, but abundantly sensitive house.
View gallery
SHARE
PIN IT
SHARE
PIN IT
SHARE
PIN IT
SHARE
PIN IT
SHARE
PIN IT
SHARE
PIN IT
SHARE
PIN IT
SHARE
PIN IT
SHARE
PIN IT
SHARE
PIN IT
SHARE
PIN IT
SHARE
PIN IT
SHARE
PIN IT
Coo Planning, House in Sayama, Osaka, Japan
SHARE
PIN IT
Coo Planning, House in Sayama, Osaka, Japan
SHARE
PIN IT
Coo Planning, House in Sayama, Osaka, Japan
SHARE
PIN IT
Coo Planning, House in Sayama, Osaka, Japan
SHARE
PIN IT
Coo Planning, House in Sayama, Osaka, Japan
SHARE
PIN IT
Coo Planning, House in Sayama, Osaka, Japan
SHARE
PIN IT
Coo Planning, House in Sayama, Osaka, Japan
SHARE
PIN IT
Coo Planning, House in Sayama, Osaka, Japan
SHARE
PIN IT
Coo Planning, House in Sayama, Osaka, Japan
SHARE
PIN IT
メディア平面詳細図.mcd
Coo Planning, House in Sayama, Osaka, Japan
SHARE
PIN IT
メディア平面詳細図.mcd
Coo Planning, House in Sayama, Osaka, Japan
SHARE
PIN IT
メディア平面詳細図.mcd
Coo Planning, House in Sayama, Osaka, Japan
SHARE
PIN IT
SECTION 狭山.mcd
Coo Planning, House in Sayama, Osaka, Japan
SHARE
PIN IT
House in Sayama, Osaka, Japan Program: single-family house Architects: Coo Planning (Akiyoshi Nakao) Area: 72 sqm Completion: 2015