The result is an individually from the inside out developed building complex with a mountain village like structure whose parts individually stretch to the light, for air and into the space, yet withdraw into hidden privacy.
The interaction of introversion and extroversion, looking in and looking out, interior and exterior spaces, light and shadow play, create their own complex cosmos.
The white, fine-grained and seamlessly plastered walls (ETICS) abandon the boundaries between interior and exterior spaces and let the individual buildings seem basic, abstract and sculptural by the way of the sharp edges of the building corners (waterproof Sto boards as a cover).
They reinforce the effect of light and provide an ideal reflective surface.
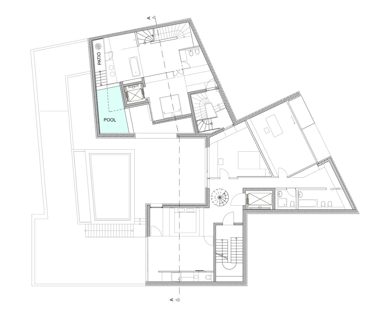
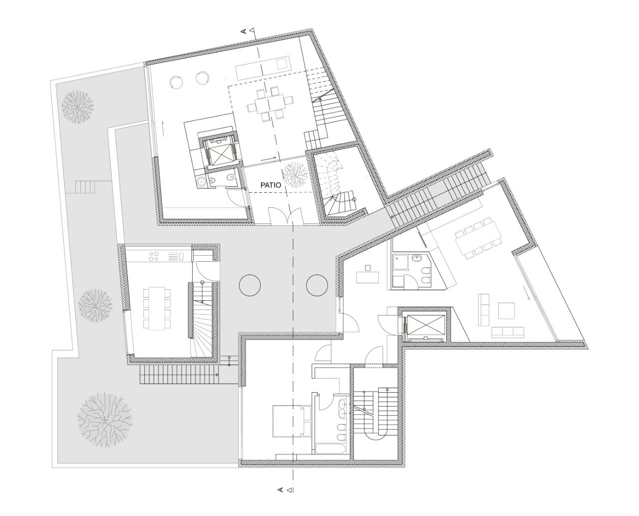
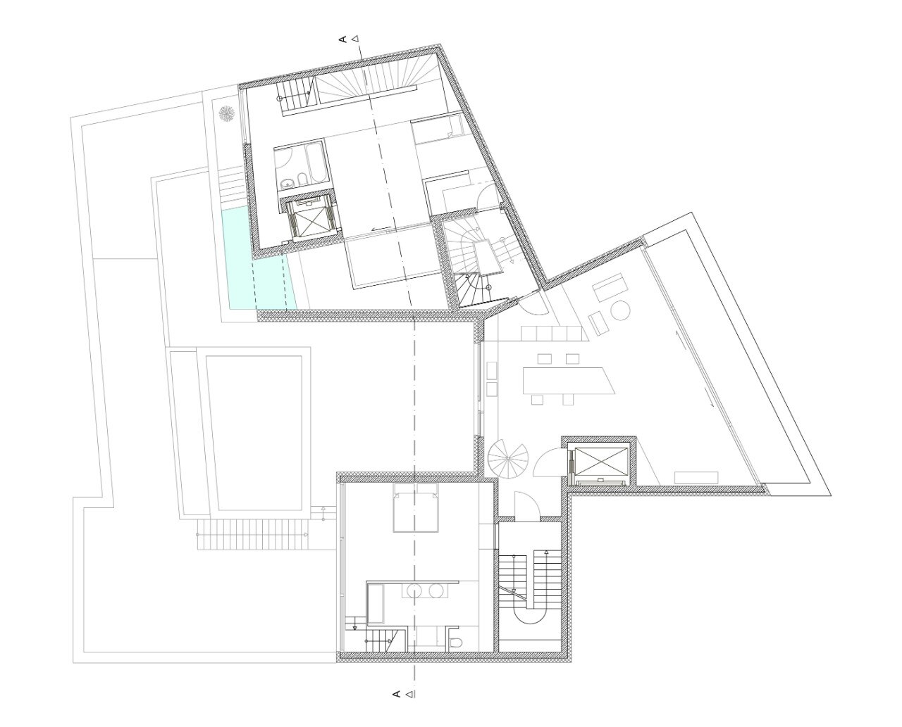
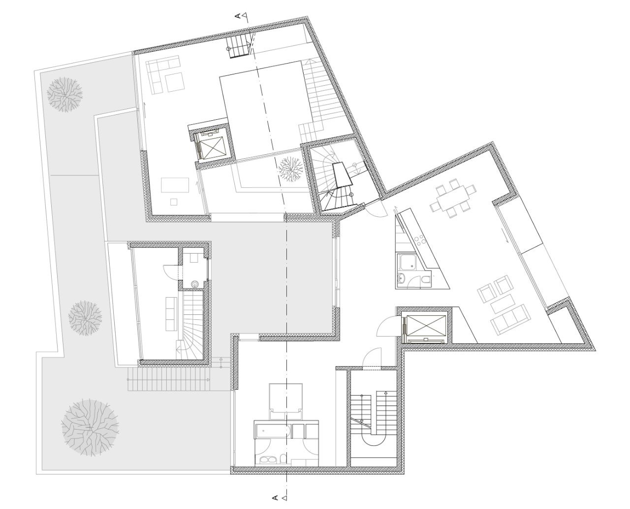
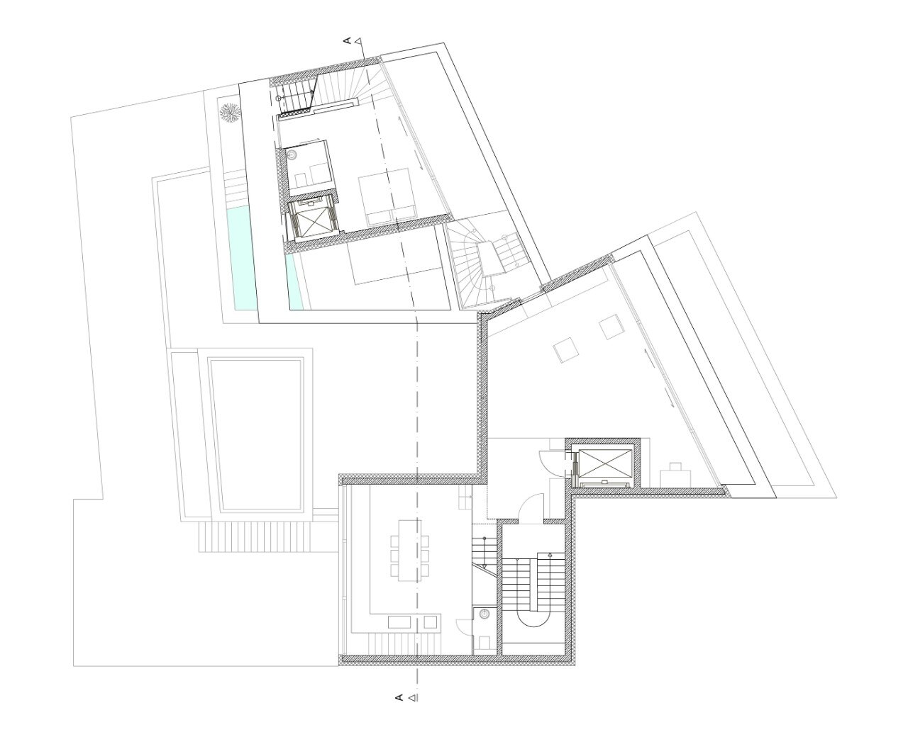
Patios and terraces, pool and water surfaces change at any time of day or season specific areas of the house and thereby contribute significantly to the increase in living quality.
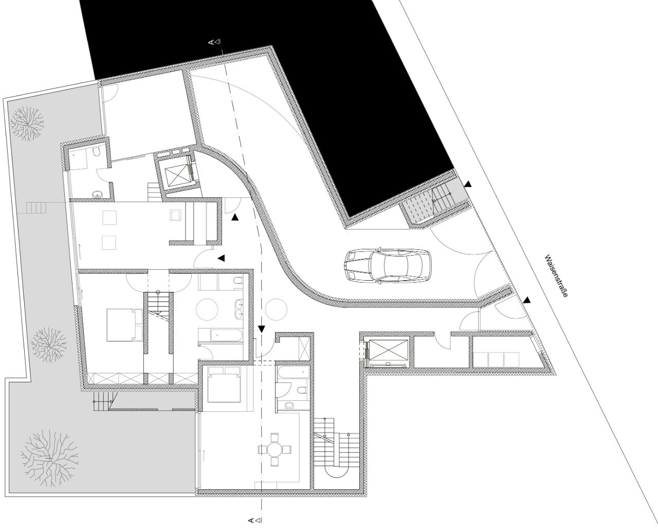
The six-storey front building houses a parking garage in the basement, above five apartments two of which are organized as maisonettes. Two townhouses, five and three floors, designed as independent vertical units additionally accessed via a courtyard on the 1st floor. All apartments have been designed and customized individually. They differ fundamentally from each other yet form a unity.
View gallery
Housing at the old city wall of Berlin, Germany
Architect: Sohrab Zafari
Year: 2014
