View gallery
C:\Users\haa\Documents\A-40-V-500_haa - Sheet - A-40-1-510 - Plan 01.pdf
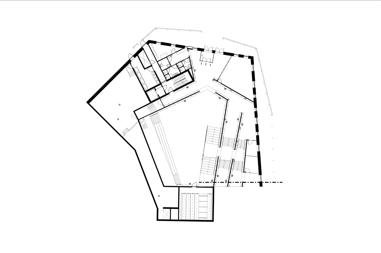
Adept, Dalarna Media Library, Falun, Sweden. First floor plan
C:\Users\haa\Documents\A-40-V-500_haa - Sheet - A-40-2-501 - Sektion A-A.pdf
Adept, Dalarna Media Library, Falun, Sweden. Section
Dalarna Media Library, Falun, Sweden
Program: media library
Architects: Adept
Engineers: Ramböll Sweden Ab, Sweco Systems Ab, Brandskyddslaget
Facade in collaboration with: Jeppe Hein
Competition Team: Adept, Rambøll, Sou Fujimoto, Topotek1, Bosch & Fjord
Client: Förvaltningsbolaget Högskolefastigheten Ab
Contractor: Hmb Construction Ab
Area: 3,000 sqm
Completion: 2014
