Domus Digital Archive PRO on sale

H Arquitectes: House 1101

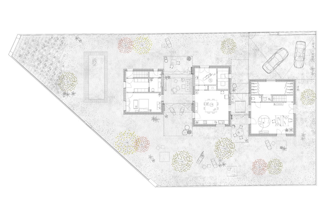
House 1101, designed by H Arquitects for an art collectors couple and composed of three brick masonry cubes, achieves a close relationship with the garden.

H Arquitectes: House 1101
One of the main goals of House 1101 was to achieve a close and essential relationship between the house and the garden in such a way that they both became the extension of each other.
All that, without falling into the unavoidable, often out of proportion, and so recurrent large glazed panels. A house with walls in a garden for an art collectors couple.
   H Arquitectes: House 1101
H Arquitectes, House 1101, Sant Cugat del Vallès, Barcelona
The proposal searches the balance between placing the maximum number of rooms on the ground floor yet keeping the garden free from masonry work volumes. This idea is developed through a volumetric composition shaped in three boxes spread throughout the garden, almost aligned and located in the plot northern side creating a wide outer zone facing south.
H Arquitectes, House 1101
H Arquitectes, House 1101, Sant Cugat del Vallès, Barcelona
The first box, to the east, houses the children’s area with three single bedrooms upstairs and a playroom on the ground floor. The second one, in the centre, accommodates the main room: the kitchen, a nearly 30square metre and 4metre high room dominated by a large fireplace. The third box, to the west, contains the parents’ zone, with the bedroom at the garden level and a high ceiling studio on the first floor.
H Arquitectes, House 1101
H Arquitectes, House 1101, Sant Cugat del Vallès, Barcelona
The spaces created between the three boxes are covered sheltering two different environments, open to the garden in north-south direction and can be closed with big folding windows. These spaces offer a very different atmosphere, much more related to the garden area than to the house. The first of these interstitial ambiences, between the children’s area and the kitchen, serves as entrance hall. The second one, bigger, between the parents’ zone and the kitchen, is the living room, designed to be a green house during winter and a fresh porch in summer.


House 1101, Sant Cugat del Vallès, Barcelona
Program: single-family house
Architects: H Arquitectes
Collaborators: Iñaki González de Mendiguchia Garmendia, DSM arquitectes, Àbac enginyers, Eliseu Guillamón / Pere Cabassa
Area: 323 sqm
Completion: 2013

Latest on Architecture

Latest on Domus

China Germany India Mexico, Central America and Caribbean Sri Lanka Korea icon-camera close icon-comments icon-down-sm icon-download icon-facebook icon-heart icon-heart icon-next-sm icon-next icon-pinterest icon-play icon-plus icon-prev-sm icon-prev Search icon-twitter icon-views icon-instagram