View gallery
WORKac, P.S. 216, Edible Schoolyard, Arturo Toscanini School, Gravesend, Brooklyn, New York © Iwan Baan
WORKac, P.S. 216, Edible Schoolyard, Arturo Toscanini School, Gravesend, Brooklyn, New York © Iwan Baan
WORKac, P.S. 216, Edible Schoolyard, Arturo Toscanini School, Gravesend, Brooklyn, New York © Iwan Baan
WORKac, P.S. 216, Edible Schoolyard, Arturo Toscanini School, Gravesend, Brooklyn, New York © Iwan Baan
WORKac, P.S. 216, Edible Schoolyard, Arturo Toscanini School, Gravesend, Brooklyn, New York © Iwan Baan
WORKac, P.S. 216, Edible Schoolyard, Arturo Toscanini School, Gravesend, Brooklyn, New York © Iwan Baan
WORKac, P.S. 216, Edible Schoolyard, Arturo Toscanini School, Gravesend, Brooklyn, New York © Iwan Baan
WORKac, P.S. 216, Edible Schoolyard, Arturo Toscanini School, Gravesend, Brooklyn, New York © Iwan Baan
WORKac, P.S. 216, Edible Schoolyard, Arturo Toscanini School, Gravesend, Brooklyn, New York © Iwan Baan
WORKac, P.S. 216, Edible Schoolyard, Arturo Toscanini School, Gravesend, Brooklyn, New York. Siteplan
WORKac, P.S. 216, Edible Schoolyard, Arturo Toscanini School, Gravesend, Brooklyn, New York. Siteplan
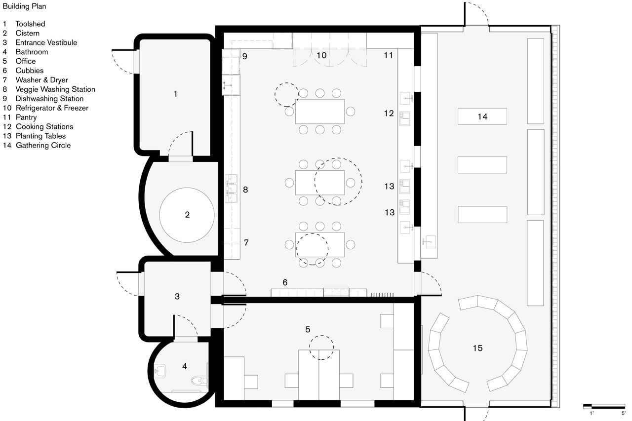
WORKac, P.S. 216, Edible Schoolyard, Arturo Toscanini School, Gravesend, Brooklyn, New York. Plan
P.S. 216, Edible Schoolyard, Arturo Toscanini School, Gravesend, Brooklyn, New York
Program: garden, kitchen and greenhouse
Architects: WORKac
Completion: 2014
