The structure is made of a wooden framework leaning over a concrete basement along the railway. The high laminated timber beams appears on the roof, giving rhythm and depth. This project is a simple answer to sustainable development concerns and to a particular urban context.
View gallery
Ateliers O–S Architectes, school gymnasium Zac Bords De Seine, Asnieres–sur–Seine (Paris), France
Ateliers O–S Architectes, school gymnasium Zac Bords De Seine, Asnieres–sur–Seine (Paris), France
Ateliers O–S Architectes, school gymnasium Zac Bords De Seine, Asnieres–sur–Seine (Paris), France
Ateliers O–S Architectes, school gymnasium Zac Bords De Seine, Asnieres–sur–Seine (Paris), France
Ateliers O–S Architectes, school gymnasium Zac Bords De Seine, Asnieres–sur–Seine (Paris), France
Ateliers O–S Architectes, school gymnasium Zac Bords De Seine, Asnieres–sur–Seine (Paris), France, sketch
PM
Ateliers O–S Architectes, school gymnasium Zac Bords De Seine, Asnieres–sur–Seine (Paris), France, siteplan
\\Serveur-os\o-s buro\COM\_BOOK\BOOK CARO\OUT\_PROD\PLANS Présentation1 (1)
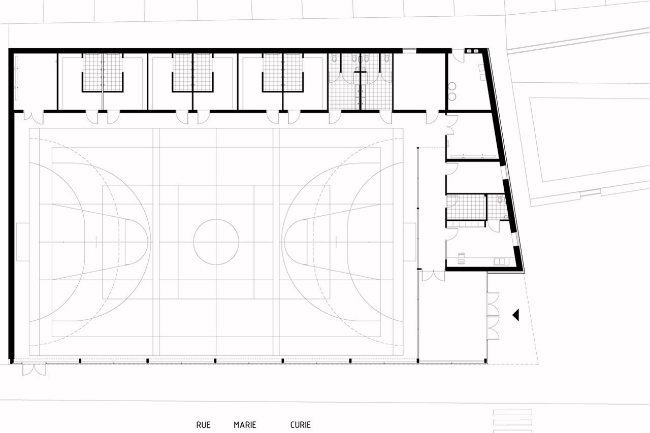
Ateliers O–S Architectes, school gymnasium Zac Bords De Seine, Asnieres–sur–Seine (Paris), France, plan
ASN_SCH
Ateliers O–S Architectes, school gymnasium Zac Bords De Seine, Asnieres–sur–Seine (Paris), France, section
School gymnasium Zac Bords De Seine, Asnieres–sur–Seine (Paris), France
Program: school gymnasium
Architects: Ateliers O–S Architectes
Client: Ville d'Asnieres–sur–Seine
Area: 1001 sqm
Lanscape design: Ateliers Paysages et Lumière
Structural engineering: EVP
