Archivio Digitale Domus PRO in offerta

Asilo LHM

Moriyuki Ochiai Architects ha progettato a Tokyo un asilo ispirato alla natura, con laghi di specchio e montagne di legno, per stimolare la fantasia dei bambini.

Moriyuki Ochiai Architects, LHM kindergarten
Abbiamo progettato un ambiente giocoso e stimolante in sintonia con la pedagogia di questo asilo che si concentra sull’idea di far crescere bambini in grado di pensare, imparare e agire in modo indipendente.
Per questo abbiamo creato uno spazio in cui le variazioni stagionali possono essere vissute al meglio. Sfruttando le vetrate affacciate su un giardino all’esterno dell’edificio i grandi spazi aperti entrano nella scuola materna.
Moriyuki Ochiai Architects, LHM kindergarten
Moriyuki Ochiai Architects, LHM kindergarten
Abbiamo sperimentato progettando un paesaggio popolato di laghi, colline e montagne che avrebbero ispirato ai bambini una varietà di usi e modi divertenti per giocare stimolando la loro immaginazione. Il paesaggio e i rilievi associati con la natura sono riecheggiati in tutto lo spazio: da un palcoscenico simile a una collina, a mobili che rappresentano piccole montagne, grotte o capanne e specchi che ricordano la superficie di uno specchio d’acqua, mentre le gradazioni dei colori delle pareti sono caratterizzate da una gamma che evoca la bellezza della natura.
Moriyuki Ochiai Architects, LHM kindergarten
Moriyuki Ochiai Architects, LHM kindergarten
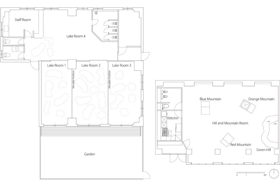
Gli specchi a forma di lago che coprono il soffitto della stanza “Lago” creano uno spazio in cui i cambiamenti minuti della luce naturale possono essere vissuti per tutta la giornata e tutte le stagioni, mentre si aggiunge il riflesso dei bambini che giocano. Le immagini riflesse aggiungono vivacità a tutto il paesaggio, mentre contribuiscono a creare un ambiente che porta i bambini ad avvicinarsi ai fenomeni naturali nelle loro attività quotidiane, con un maggiore senso di meraviglia e di giocosità.
Moriyuki Ochiai Architects, LHM kindergarten
Moriyuki Ochiai Architects, LHM kindergarten
Nella stanza “Collina e Montagna”, la collina verde permette una varietà di usi per le attività volte a stimolare la creatività dei bambini, come posti a sedere per un concerto, un palco per un gioco o uno stand per una mostra. Inoltre, i bambini possono scavalcare i pezzi rossi, blu e arancione come fossero piccole creste di montagne, sedersi su di essi, attraversarli come fossero caverne o rintanarsi all’interno per leggere un libro o giocare a nascondino.
Moriyuki Ochiai Architects, LHM kindergarten
Moriyuki Ochiai Architects, LHM kindergarten
I toni arancio e giallo del sole al tramonto, i colori verde bosco e i motivi dell’acqua sulle strutture di gioco a forma di montagna si fondono in una gradazione che si diffonde in tutto lo spazio come un’onda di colore pieno di movimento e vivace. Questo permette ai bambini di evolvere allegramente in un ambiente immerso nel ritmo dei colori dove possono trovare il loro spazio e decidere come spendere il loro tempo ognuno a suo modo.

Ultime News

Altri articoli di Domus

China Germany India Mexico, Central America and Caribbean Sri Lanka Korea icon-camera close icon-comments icon-down-sm icon-download icon-facebook icon-heart icon-heart icon-next-sm icon-next icon-pinterest icon-play icon-plus icon-prev-sm icon-prev Search icon-twitter icon-views icon-instagram