Domus Digital Archive PRO on sale

LHM kindergarten

Moriyuki Ochiai Architects designed in Tokyo a kindergarten inspired by nature, with mirror lakes and wooden mountains, to stimulate children’s imagination.

Moriyuki Ochiai Architects, LHM kindergarten
We designed a playful and exciting environment suitable for implementing this kindergarten’s educational policy, which focuses on bringing up children that can think, learn and act independently.
In doing so, we created a space in which seasonal changes can be experienced to the fullest by taking advantage of the glass windows facing a garden outside of the building to usher the great outdoors into the kindergarten.
Moriyuki Ochiai Architects, LHM kindergarten
Moriyuki Ochiai Architects, LHM kindergarten
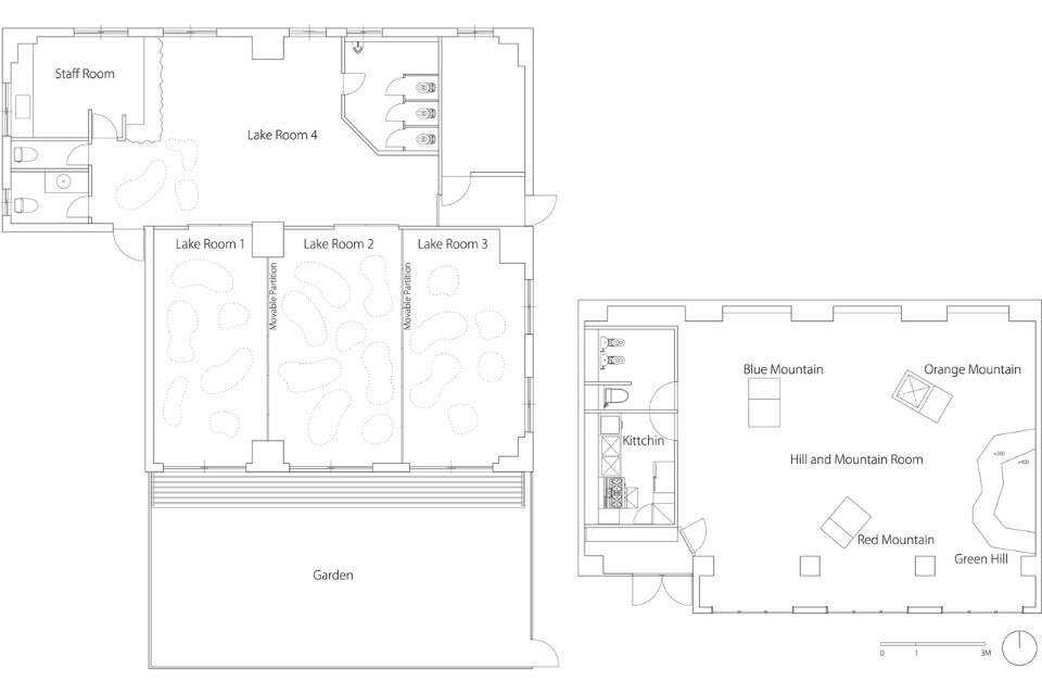
We experimented with a landscape design populated with lakes, hills and mountains that would inspire children a variety of uses and fun ways to play by stimulating their imagination. Here, the scenery and relief associated with nature is echoed throughout the space by a cleverly designed stage resembling a hill, furniture representing small mountains, caves or cabins and mirrors reminiscent of the surface of a body of water, while the color gradations of the walls feature a palette evoking the beauty of nature.
Moriyuki Ochiai Architects, LHM kindergarten
Moriyuki Ochiai Architects, LHM kindergarten
The lake-shaped mirrors covering the ceiling in the “Lake” room help create a space in which minute changes in natural light, such as that from the morning or evening sun or that of a sunny or cloudy sky, can be experienced throughout the day and the seasons, while also adding to the bustle by reflecting the children at play. As the reflected imagery adds to the liveliness of the entire scenery, it helps create an environment that brings children to approach natural phenomena and their daily activities with an increased sense of wonder and playfulness.
Moriyuki Ochiai Architects, LHM kindergarten
Moriyuki Ochiai Architects, LHM kindergarten
In the “Hill and Mountain” room, the green hill allows for a variety of uses for activities intended to boost the creativity of children, such as seating for a concert, a stage for a play or a stand for a exhibition. Moreover, children can climb over the red, blue and orange pieces of furniture like a small mountain ridge, sit on them, crawl through them like a cave or enjoy them as their own private space by holing up inside them like a in cabin to enjoy a book or play hide-and-seek.
Moriyuki Ochiai Architects, LHM kindergarten
Moriyuki Ochiai Architects, LHM kindergarten
The orange and yellow tones of the setting sun, the green forest hues and the waterfall motifs on the mountain-shaped play structures all come together in a signature gradation that spreads throughout the whole space like a wave of color filled with lively movement. This enables the children to cheerfully evolve in an environment bathed in the rhythm of colors where they can find their space and decide how to spend their time each in their own way.

Latest on News

Latest on Domus

China Germany India Mexico, Central America and Caribbean Sri Lanka Korea icon-camera close icon-comments icon-down-sm icon-download icon-facebook icon-heart icon-heart icon-next-sm icon-next icon-pinterest icon-play icon-plus icon-prev-sm icon-prev Search icon-twitter icon-views icon-instagram