Meeting Place Mariatorget è un nuovo hub sociale nato dalla conversione della Saint Paul Church in spazi per la comunità, tra cui ristorazione per i bisognosi, sala eventi ed uffici per la ONG Stockholms Stadsmission.
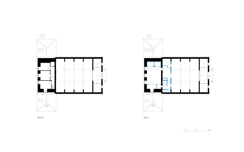
Il progetto dello studio Spridd per la trasformazione della chiesa neogotica, oggi candidato al Premio Mies van der Rohe, lavora sull’idea di infrastrutturare uno spazio quadrato multiuso al centro della navata, attorno al quale si organizzano stanze più minute e aree di servizio. Le 200 persone che vi possono accedere contemporaneamente avranno a disposizione una nuova sala civica, accogliente e flessibile negli usi. Il precedente schema longitudinale viene convertito in un impianto a-direzionale, quasi una piazza, delimitata dai muri storici della chiesa e dalle nuove pareti delle gallerie che assumono un carattere urbano.
L’aggiunta delle gallerie di servizio avviene con grande naturalezza, cercando un’intonazione con la preesistenza che permetta di leggere la trasformazione dell’edificio come un’armonica evoluzione della sua architettura. Come si è spesso verificato nel riuso adattivo di edifici antichi alle esigenze della contemporaneità, questa architettura identifica un atteggiamento progettuale dove contemporaneo non è per forza sinonimo di opposto a storico. Pur chiaramente moderne, infatti, le parti nuove si completano con le preesistenti grazie soprattutto all’equilibrio cromatico e alle superfici specchianti dei serramenti interni.
Gli esterni sono stati oggetto di opere di restauro per restituire all’edificio il suo aspetto originario, gravemente compromesso dopo gli interventi di rimaneggiamento del XX secolo che sono stati riconosciuti e rimossi in seguito ad un attento studio filologico.
