Il colore ha svolto un ruolo essenziale per dare alla scuola un senso di giocosità e leggerezza. I colori primari dalle grandi campiture, che coprono le pareti di vetro dei piani terra, i tendoni e nel parco giochi, sono stati utilizzati per definire il carattere della scuola.
Le facciate in pietra a Victory Heights prendono spunto dalle dune di sabbia in movimento del deserto, con il contrappunto dei colori primari alle finestre. Il gioco delle finestre offre un rapporto visivo con l’esterno per i bambini nelle aule e un momento di pausa dalla prevedibilità del patrimonio immobiliare circostante.
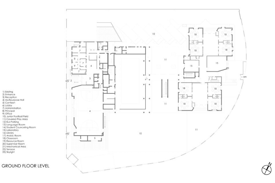
Victory Heights Primary School, Sports City, Dubai, UAE
Tipologia: scuola elementare e asilo inglese
Architetto: r+d studio
Team di progetto: Shikha Doogar, Shridhar Rao, Rachita Malhotra, Neha Yadav, Aditi Bhatia, Anshul Kapoor, Samiksha Khanna, Harshat Verma, Mudit Gupta, Aarushi Kalra, Sanchit Arora, Shreya Gera
Collaboratori: Al Saraya Engineering Consultants, Aselmech Engineering
Costo: AED 25 M
Area: 6.160 mq
Completamento: 2015
