Un reticolo di aste in acciaio riduce la radiazione solare e protegge le finestre da possibili atti di vandalismo (il magazzino sorge in una zona poco frequentata durante la notte).
Lo spazio di lavoro interno è a doppia altezza, definito da pareti realizzate con pannelli di OSB, economici, informali e dal carattere industriale.
Per le strade di Guadalajara è possibile trovare gli artigiani che creano oggetti intrecciando diversi materiali come fili di plastica fibre naturali. Per aggiungere alla costruzione un esempio di artigianato gli architetti hanno deciso far realizzare a questi artigiani il corrimano delle scale interne, costituito da foglie di palma intrecciate.
Galleria
Alejandro Guerrero e Andrea Soto. ATELIER ARSº, Levering Trade, Zapopan, Jalisco, Messico
Alejandro Guerrero e Andrea Soto. ATELIER ARSº, Levering Trade, Zapopan, Jalisco, Messico
Alejandro Guerrero e Andrea Soto. ATELIER ARSº, Levering Trade, Zapopan, Jalisco, Messico
Alejandro Guerrero e Andrea Soto. ATELIER ARSº, Levering Trade, Zapopan, Jalisco, Messico
Alejandro Guerrero e Andrea Soto. ATELIER ARSº, Levering Trade, Zapopan, Jalisco, Messico
Alejandro Guerrero e Andrea Soto. ATELIER ARSº, Levering Trade, Zapopan, Jalisco, Messico
Alejandro Guerrero e Andrea Soto. ATELIER ARSº, Levering Trade, Zapopan, Jalisco, Messico
Alejandro Guerrero e Andrea Soto. ATELIER ARSº, Levering Trade, Zapopan, Jalisco, Messico
Alejandro Guerrero e Andrea Soto. ATELIER ARSº, Levering Trade, Zapopan, Jalisco, Messico
Alejandro Guerrero e Andrea Soto. ATELIER ARSº, Levering Trade, Zapopan, Jalisco, Messico
Plantas
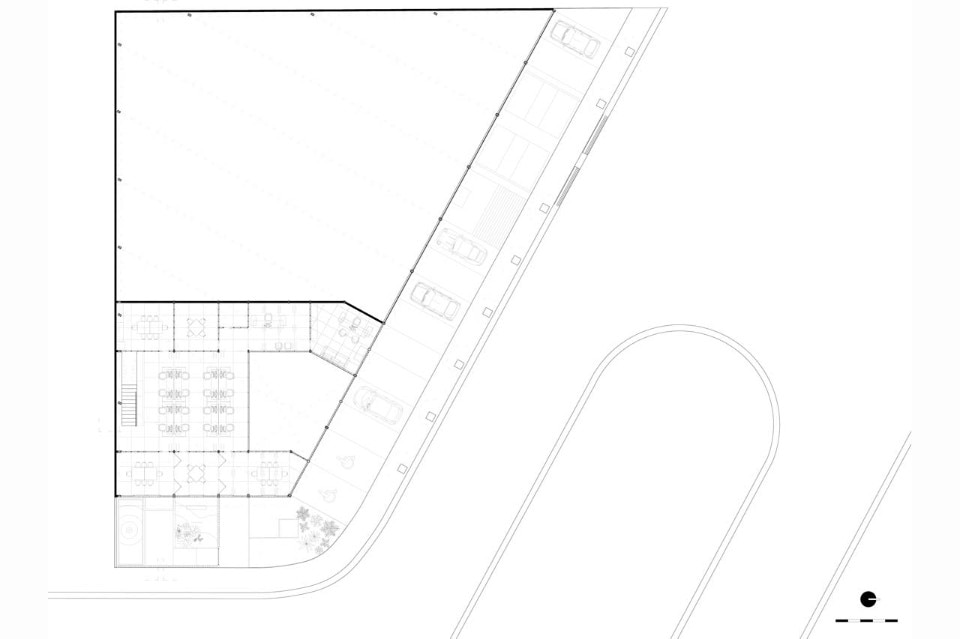
Alejandro Guerrero e Andrea Soto. ATELIER ARSº, Levering Trade, Zapopan, Jalisco, Messico. Pianta del piano terra
Planta alta
Alejandro Guerrero e Andrea Soto. ATELIER ARSº, Levering Trade, Zapopan, Jalisco, Messico. Pianta del primo piano
Levering Trade, Zapopan, Jalisco, Messico
Tipologia: magazzino e uffici
Architetti: Alejandro Guerrero e Andrea Soto. ATELIER ARSº
Collaboratori: Francisco Pacheco
Impresa: SGR Edificaciones
Ingegneria strutturale: Federico Alba
Area: 1.184 mq
Completamento: 2015
