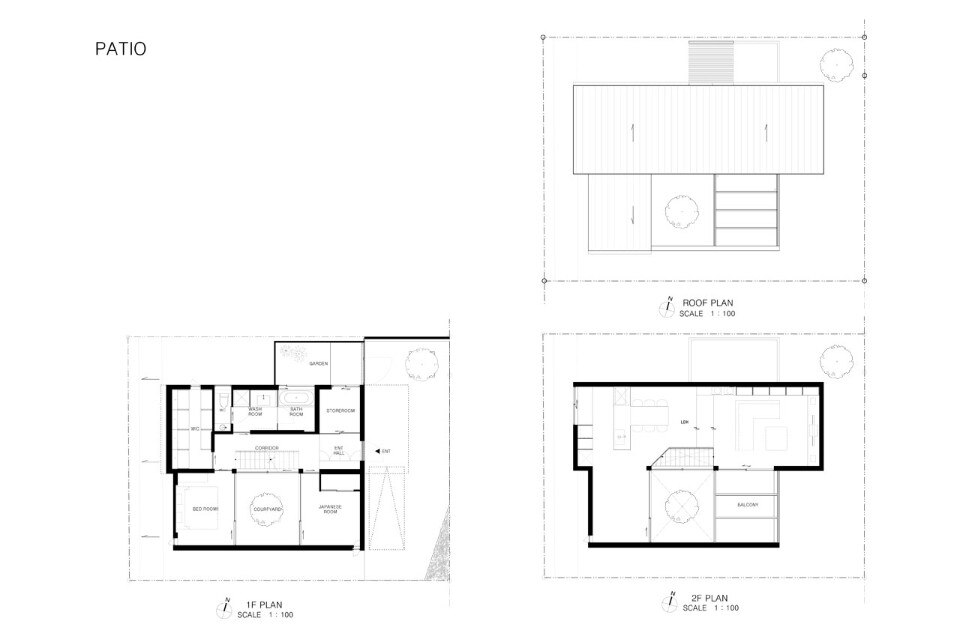
In contrasto con l’esterno estremamente chiuso in se stesso, uno spazio interno arioso e pieno di luce naturale diventa il nucleo degli spazi abitativi. Questo patio consente un collegamento facile e informale tra la sala in stile giapponese con tatami, adiacente all’ingresso, e la camera da letto principale situata di fronte. Un luogo per la cura del corpo è collocato accanto al bagno, creando uno spazio unitario con un’atmosfera rilassante e una circolazione agevole per svolgere le faccende domestiche.
Salendo le scale al centro, affacciate sulla stewartia monadelpha piantata nel cortile, appare progressivamente l’imponente superficie del soffitto inclinato in legno di abete rosso. La superficie di vetro riflette la luce naturale proveniente dal patio, producendo giochi di sfumature sulla superficie del soffitto.
Un mobile costruito su misura, accanto al soggiorno, ospita libri e dischi, mentre le grandi porte scorrevoli uniscono questo ambiente con la zona giorno esterna. L’area pranzo–cucina è situata su un piano rialzato per creare una graduale separazione dalla zona living.
Un altro locale vicino alla zona pranzo cucina è pensato per trascorrere il tempo libero. La luce indiretta che illumina lo spazio di notte crea un’atmosfera diversa dal giorno riflettendosi sul soffitto con gradazione di luce diverse.
Patio House, Kawasaki, Prefettura di Kanagawa, Giappone
Tipologia: casa unifamiliare
Architetti: Apollo Architects & Associates (Satoshi Kurosaki)
Ingegneria strutturale: Masaki Structure (Kenta Masaki)
Ingegneria meccanica: Naoki Matsumoto
Progetto illuminotecnico: Sirius Lighting Office
Area: 175,21 mq
Completamento: 2015
