La costruzione si configura come un volume sintetico, ma allo stesso tempo complesso, risolto attraverso un percorso continuo che collega tutte queste funzioni lungo un unico sistema di collegamento che attraversa tutti i livelli dell’edificio.
Esternamente, come nelle preesistenze adiacenti, prevalgono la verticalità e la geometria del tetto. Queste caratteristiche identificano la Filarmonica con il contesto circostante.
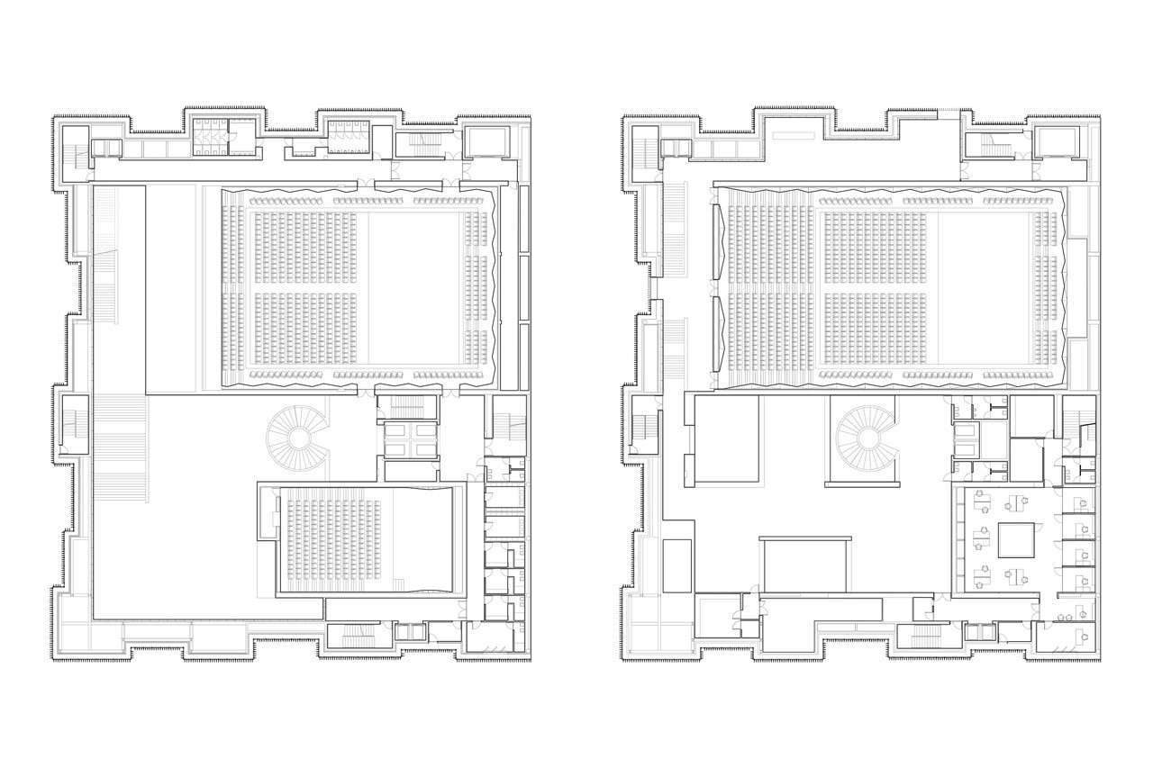
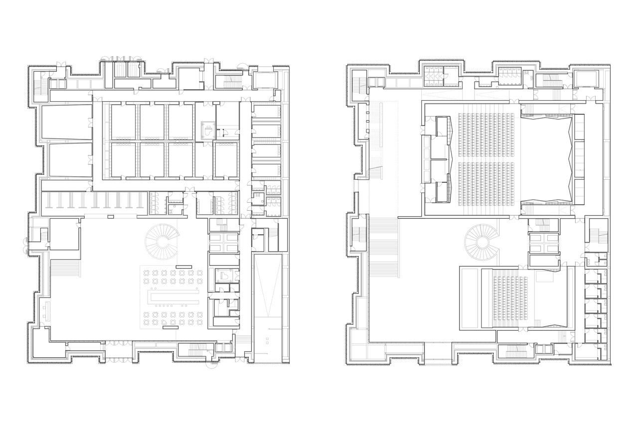
La composizione in pianta è definita da un anello perimetrale che ospita per lo più spazi di servizio. Da un lato ciò permette di definire un grande vuoto entro il quale gravitano la sala sinfonica e quella per la musica da camera, dall’altro consente di modellare il rapporto dell’edificio con l’ambiente circostante. La modulazione del tetto rappresenta l’unico altro elemento espressivo, che permette l’integrazione del nuovo edificio all’interno del profilo urbano frammentato della città.
Nella sua materialità, l’edificio viene percepito come un elemento leggero: la facciata in vetro, illuminata dall’interno, permette percezioni diverse a seconda dell’uso. L’austerità esteriore e la semplice composizione degli spazi interni di circolazione contrastano con l’espressività della sala principale.
In conformità con la tradizione dell’Europa centrale delle sale da concerto, la decorazione diventa ornamento e funzione.
La sala è composta secondo la sequenza di Fibonacci, in cui la frammentazione aumenta con la distanza dalla scena, e dà forma a uno spazio ornamentale che ricorda la tradizione classica attraverso il suo rivestimento in foglia d’oro.
Galleria
Y:\PUBLICACIONES\01 PB_PROYECTOS\026 SZCZECIN_FILARMONICA\01_PLANOS\01 Dwg\07 Septiembre 2014\026_Facade South Model (1)
Y:\PUBLICACIONES\01 PB_PROYECTOS\026 SZCZECIN_FILARMONICA\01_PLANOS\01 Dwg\07 Septiembre 2014\026_Plan 1 Model (1)
Y:\PUBLICACIONES\01 PB_PROYECTOS\026 SZCZECIN_FILARMONICA\01_PLANOS\01 Dwg\07 Septiembre 2014\026_Plan 3_4 fusion Model (1)
Y:\PUBLICACIONES\01 PB_PROYECTOS\026 SZCZECIN_FILARMONICA\01_PLANOS\01 Dwg\07 Septiembre 2014\026_Section 1 Model (1)
Y:\PUBLICACIONES\01 PB_PROYECTOS\026 SZCZECIN_FILARMONICA\01_PLANOS\01 Dwg\07 Septiembre 2014\026_Section 4 Model (1)
Y:\PUBLICACIONES\01 PB_PROYECTOS\026 SZCZECIN_FILARMONICA\01_PLANOS\01 Dwg\07 Septiembre 2014\026_Section 5 Model (1)
Mieczysław Karłowicz Philharmonic Hall, Szczecin, Polonia
Tipologia: filarmonica
Architetti: Barozzi/Veiga (Fabrizio Barozzi, Alberto Veiga)
Leader di progetto: Pieter Janssens, Agnieszka Samsel
Team di progetto: Marta Grządziel, Isak Mayor, Petra Jossen, Cristina Lucena, Cristina Porta, Ruben Sousa
Architetto locale: Studio A4 Sp. z o.o. Jacek Lenart
Ingegneria strutturale: Boma S.L., Fort Polska Sp. z o.o.
Installazioni: Gla Engineering Sp. z o.o., Elseco Sp. z o.o., Anoche Iluminación Arquitectónica
Acustica: Arau Acustica
Faccciate: Ferrés Arquitectos y Consultores
Impresa: Warbund S.A.
Area: 3.800 mq
Budget: circa 30.000.000 Euro
Completamento: 2014
