Inoltre, lo spazio serve anche come elemento che riflette i cambiamenti visivi di luce all’interno della stanza.
La configurazione dinamica data dall’accostamento dei box che ospitano gli ambienti, insieme alla disposizione ritmica delle finestre, crea il disegno compositivo del progetto.
Galleria
<9678897A93402095BD96CA907D208E478E8F>
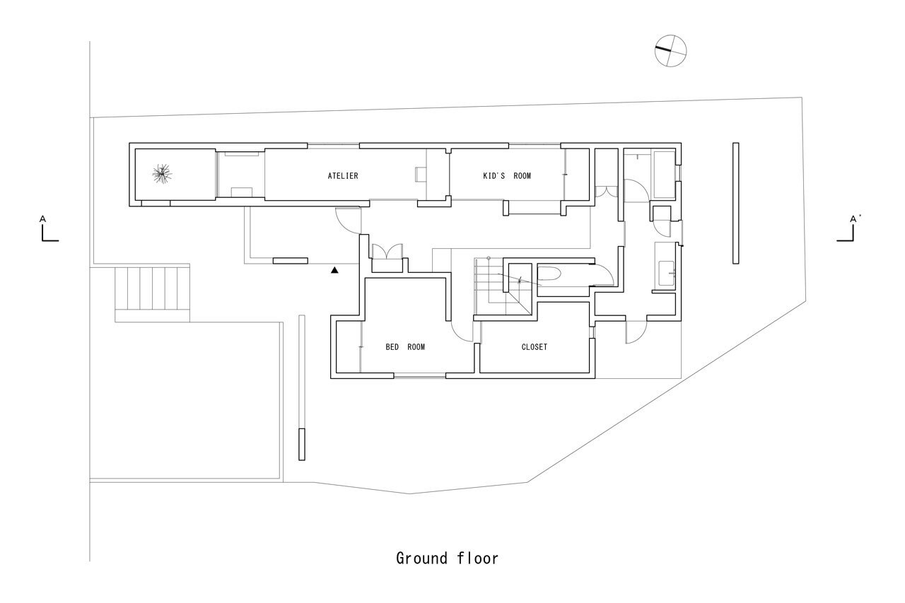
FORM/Kouichi Kimura Architects, Scape House, Shiba, Giappone. Pianta del piano terra
<9678897A93402095BD96CA907D208E478E8F>
FORM/Kouichi Kimura Architects, Scape House, Shiba, Giappone. Pianta del primo piano
Scape House, Shiba, Giappone
Tipologia: casa unifamiliare
Architetti: FORM/Kouichi Kimura Architects
Area: 137 mq
Completamento: 2014
