Galleria
Ecole Tourcoing Collège LucyAubrac by Coldefy
CAAU, Collège Lucie Aubrac, Tourcoing, Francia
Ecole Tourcoing Collège LucyAubrac by Coldefy
CAAU, Collège Lucie Aubrac, Tourcoing, Francia
Ecole Tourcoing Collège LucyAubrac by Coldefy
CAAU, Collège Lucie Aubrac, Tourcoing, Francia
Ecole Tourcoing Collège LucyAubrac by Coldefy
CAAU, Collège Lucie Aubrac, Tourcoing, Francia
college lucie aubrac - plan masse
CAAU, Collège Lucie Aubrac, Tourcoing, Francia, inquadramento
Y:\2009 - DOSSIER EN COURS\34.09-TOURCOING COLLEGE LUCIE AUBRAC\06.DET\Images\plans allégés presse\Coupe hall entrée modif Présentation1 (1)
CAAU, Collège Lucie Aubrac, Tourcoing, Francia, sezioni
Y:\2009 - DOSSIER EN COURS\34.09-TOURCOING COLLEGE LUCIE AUBRAC\06.DET\Images\plans allégés presse\34.09_Coupes salles de sport modif Présen
CAAU, Collège Lucie Aubrac, Tourcoing, Francia, sezioni
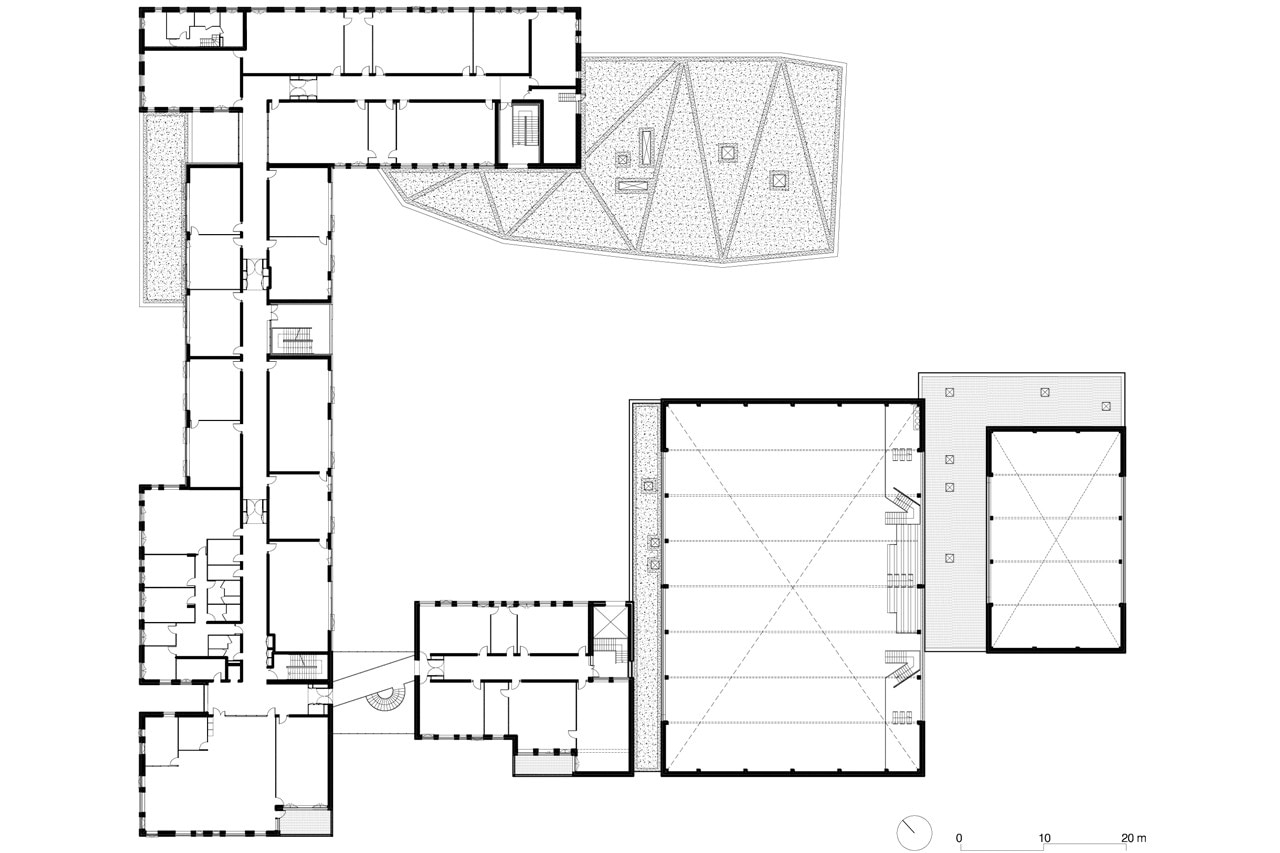
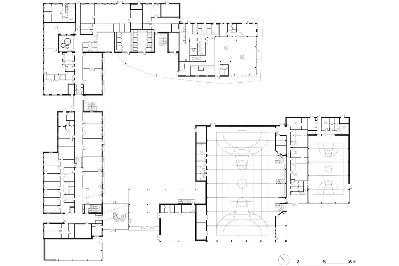
Y:\2009 - DOSSIER EN COURS\34.09-TOURCOING COLLEGE LUCIE AUBRAC\06.DET\Images\plans allégés presse\34.09_PLAN RDC_allégé Présentation1 (1)
CAAU, Collège Lucie Aubrac, Tourcoing, Francia, pianta del piano terra
Collège Lucie Aubrac, Tourcoing, Francia
Programma: scuola media
Architetti: Coldefy & Associés Architectes Urbanistes (CAAU)
Area: 10.000 mq
Completamento: settembre 2013
