View gallery
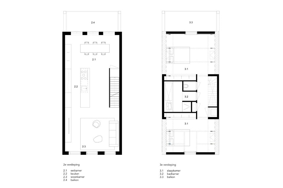
An integrated wall cabinet organizes the living, kitchen and dining area in one large gesture. Several functions have been integrated in this block such as storage space, a television cabinet and a custom designed kitchen which can be hidden behind two large sliding panels. A contrasting black kitchen island combined with a large high table is placed in the middle of the room and divides the space. Furniture in black and dark blue tones are in contrast with the light airy space. The top floor including two bedrooms and a bathroom, is finished in white in combination with the rough oak flooring. New rooflights above the stairs and in the bathroom are made to flood the rooms with natural light. A built-in bath and custom designed sink blends in with the rest of the space.
House 13, Amsterdam, The Netherlands
Program: loft
Architects: i29 interior architects
Area: 120 sqm
Completion: 2017
