View gallery
In the design, RIGI wants to create a feeling of old modern; but it is not a retro of only one specific style. The sense of the structure of steel tube and leather of the furniture, words on the wall, light emitting light box, all different details are used to immerse people in the feeling of a so-called old golden age of the movie. At the center of the space, RIGI created a pure white area, an abstract and surreal space where pink installation adds the sense of drama. Materials and color are mainly in black and white, as the film itself is black and white, light and shadow art.
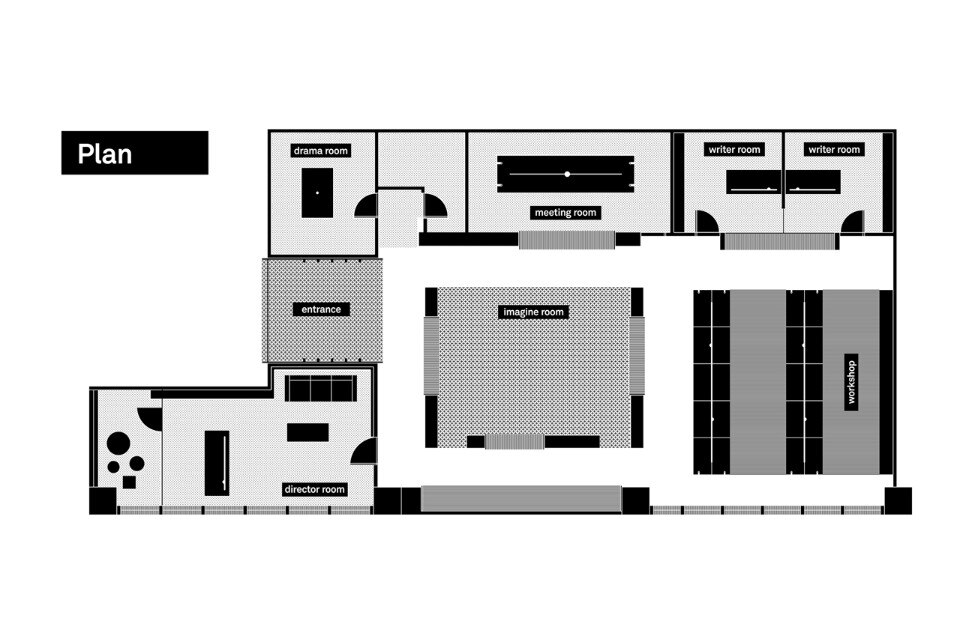
Firstcry film office, Shanghai
Program: office
Design: RIGI Design – Liu Kai
Area: 250 sqm
Completion: 2017
