View gallery
P:\2016-16 ZSG Suzhou\Issued\170708_for PR\161113_平面 Model (1)
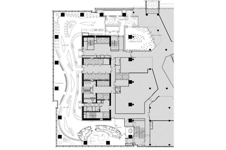
Wutopia Lab, Metal Rainbow, plan
‘The Sanctuary of Crystal’ is a space full of books and nothing else. The latest arrivals were arranged on the pre-fabricated transparent acrylic shelves, outstanding the presence of the books. After the whiteness, ‘The Cave of Fireflies’ is a darker tunnel connecting the main hall and the entrance. Customers will pick books here and follow the guide of optic fibers into the main reading area.
Metal Rainbow, Suzhou, China
Program: bookstore
Architect: Wutopia Lab – Yu Ting
Project architect: Shuojiong Zhang
Lighting design: Gradient Lighting
Design consultant: ArchUnits
Area: 1,380 sqm
Completion: 2017
