View gallery
Once a hub for manufacturing, Cremorne has seen an influx of young professionals, start-ups and creative industries in recent years, breathing new life into its mix of warehouses, factory shells and Victorian cottages. The warehouse’s brick bounding walls and the steel trusses that supported the roof have been retained. The exterior was refreshed with a vibrant pink and grey palette, which continues inside. New steel signage picks up on the building’s heritage, while a driveway entry ramp recalls its previous life as an offset printer.
View gallery
Z:\- ACTIVE PROJECTS\INACTIVE\- W008 PULITANO GROUP - CREMORNE\- 010 WORKING FILES\- AUTOCAD\DIAGRAMS 01 PLAN (1)
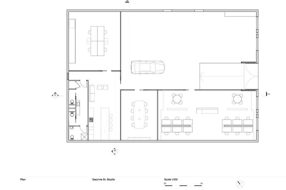
Biasol, Gwynne Street Studio, floor plan
Z:\- ACTIVE PROJECTS\INACTIVE\- W008 PULITANO GROUP - CREMORNE\- 010 WORKING FILES\- AUTOCAD\DIAGRAMS 02 SECTION AA (1)
Biasol, Gwynne Street Studio, section
