View gallery
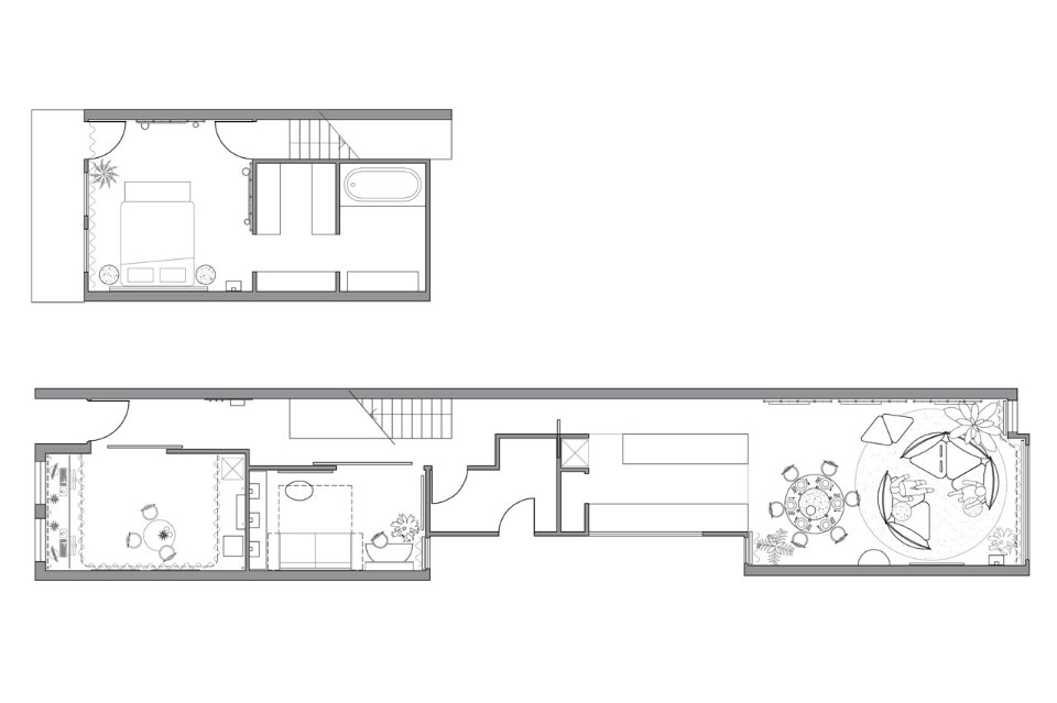
An interior layer is inserted in an existing Melbourne terrace house that allows parts of the dwelling to become a home office. A circular motif is omnipresent in this design as a symbol of inclusion and sharing, and can be found throughout the interior, from the upstairs bedroom lattice frame to the sturdy terrazzo lazy susan on the dining table. Other symbols, or totems, also appear in the space, which contain valued objects – such as books and whiskey – of the clients.
Domestic Access, Melbourne
Program: apartment
Architect: Sibling Architecture
Completion: 2017
