View gallery
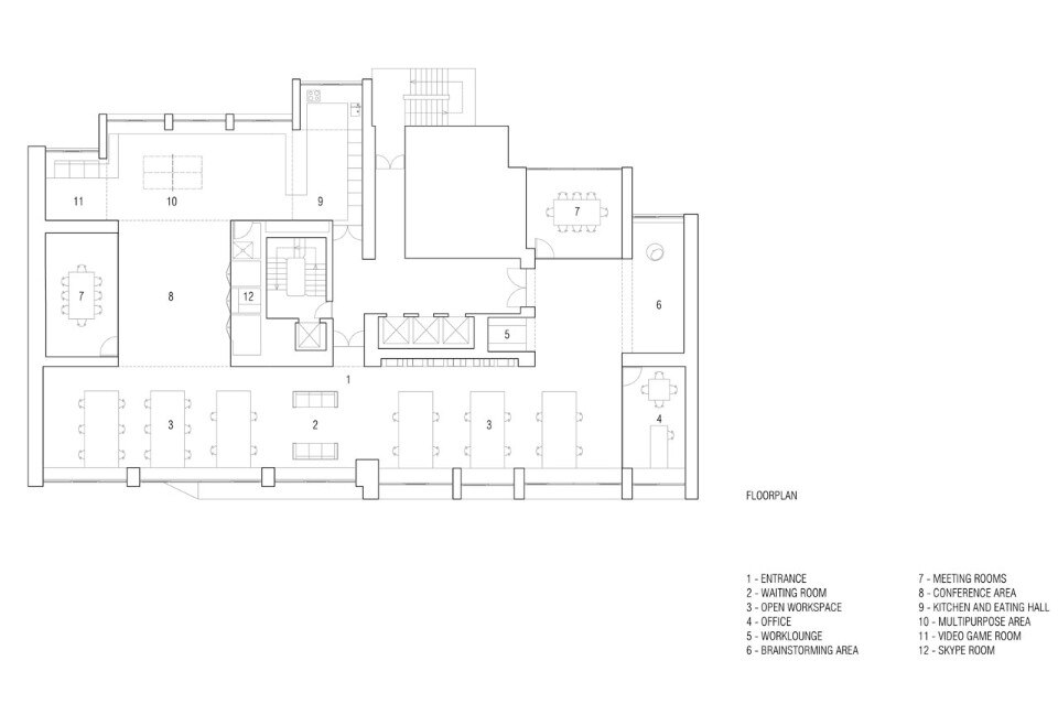
The office was divided into two areas: one dedicated to work, with an open-space office, a brainstorming room and meeting rooms. The second area dedicated to leisure and relaxation, including a kitchen and a presentation area. This solution allowed for better acoustics and functional control of the whole office. Large sliding doors were installed to separate, where necessary, these two main areas.
View gallery
Seedrs Office, Lisbon, Portugal
Program: office
Architects: Paralelo Zero, Pedro Marchand
Completion: 2017
