View gallery
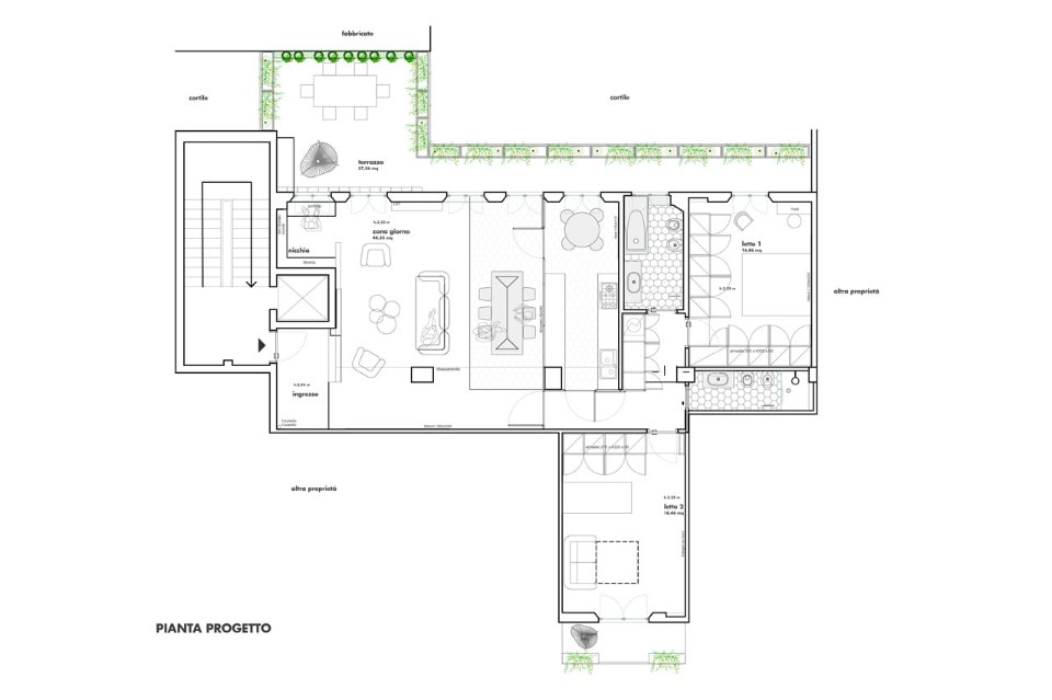
The architectural proposal is aimed at achieving a rational and functional home space but extremely sophisticated and refined furnishing and materials. One of the most important concepts is the textural breaks: it is decided to keep the existing wooden floor, inserting a new one in blue and white cement tiles, keeping quite distinct the materials like a carpet that demarcates the areas. The wide wooden wall of the living area continues delimiting a cube that encloses the service areas: kitchen and laundry area.
SM22, Milan
Program: apartment
Architect: co.arch studio – Giulia Urciuoli e Andrea Pezzoli
Contractor: EDIL PM
Green consultant: Virilux
Completion: 2016
