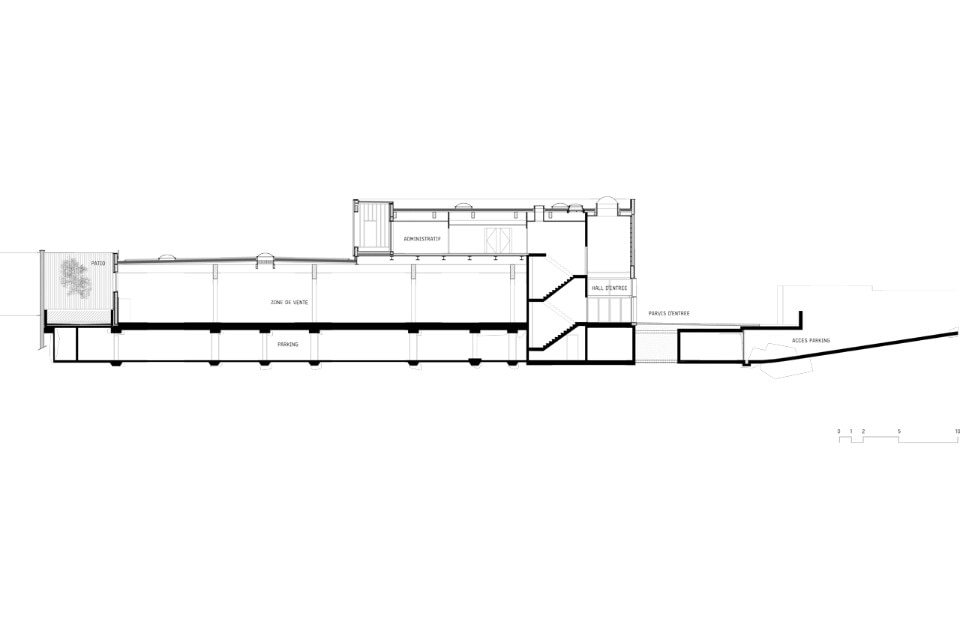
Situated in the middle of an elongated 180m long and largely paved city block, the project aims to improve the quality and permeability of the site, both for users of the building and for residents of the area. In order to create a new public pedestrian crossing which splits the block, the existing building – which was due for demolition – is relocated to the edge of the plot. The new building helps to upscale a difficult zone, enclosed between high party walls.
Supermarket in Liége, Belgium
Program: supermarket
Architect: MDW Architecture & H+G Architects
Design team: (MDW) Marie Moignot, Xavier De Wil, Ludovic Raquet, Gilles Debrun, Jérôme Elleboudt, Kristof Van Den Berghe, Yvan Breithof, Thomas Gillet; (H+G) Charles Herfurth, Guillaume De Ghellinck, Henry Lebrun, François Denayer, Tanguy van Cutsem, Marie-Eve Delfosse
Mechanical Engineer: DTS
Structural Engineer: SETESCO
Contractor: BCDG
Area: 3,500 sqm
Completion: 2015
