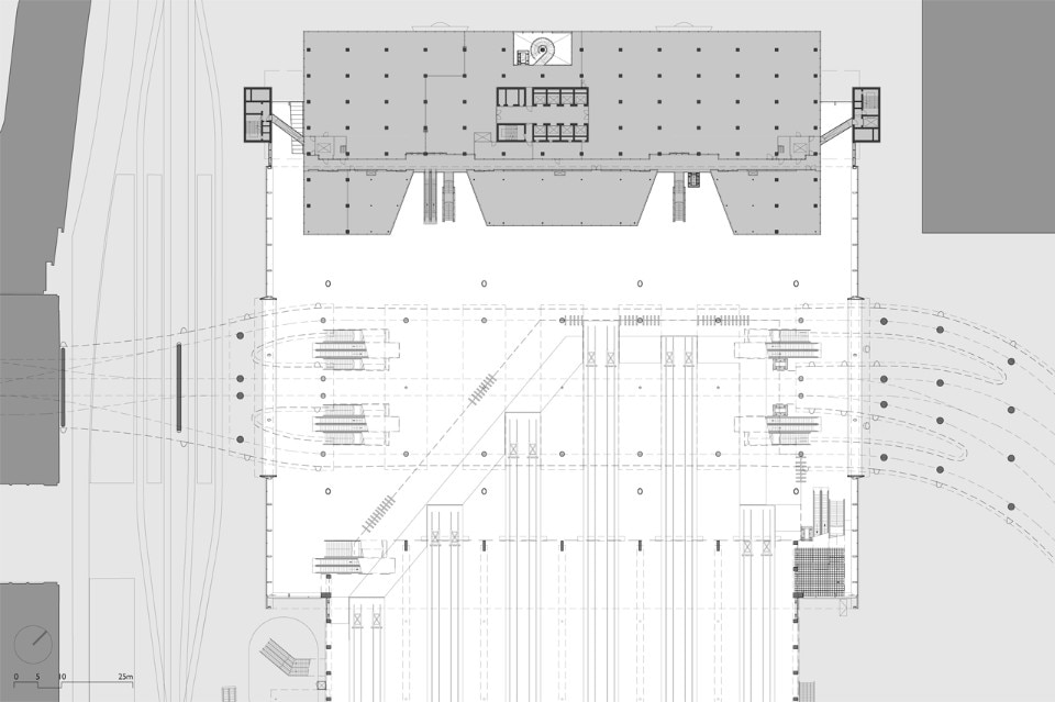
Benthem Crouwel Architects has designed the new station as a roofed urban plaza, a place for residents and commuters alike. Its additional entrances have strengthened physical ties between the city centre and the financial district (Beatrixkwartier). There are four entrances in all and this foursidedness returns in the roof, which has been designed as a diagonal pattern of lozenge-shaped panels. These present a spectacular play of light and shadow whenever there is sunshine.
The lozenges provide ventilation by opening automatically in warm weather, act as solar protection, contribute to the acoustics and open as smoke vents should fire break out. Eight elegant columns support the station roof, which is the size of two football pitches. The station building, which measures 120 by 96 metres and is 22 metres tall, is almost entirely of glass. Once inside, all modes of transport (train, tram and bus) as well as retail and hospitality areas can be taken in at a glance. The design provides a natural and flexible organization of traffic flows. Multiple routes are possible, in fact every traveller or passer-by creates a route of their own.
View gallery
JHML1404-0192
JHML1404-0230
JHML1404-0309
JHML1601_MG_2897
JHML1602-4708
JHML1601_DSC1143
PGDA_zonder tekst
PG04_zonder tekst
PG02_zonder tekst
PG00_zonder tekst
PG01_zonder tekst
DS01_zonder tekst
DS02_zonder tekst
The Hague Central Station, The Hague, The Netherlands
Program: railway station
Architects: Benthem Crouwel Architects
Project team: Jan Benthem, Mels Crouwel, Pieter van Rooij, Anja Blechen, Jurriaan de Bruijn, Frank Deltrap, Aafke van Dijk, Amir Farokhian, Pia Hanhijärvi, Jeroen Jonk, Volker Krenz, Ronno Stegeman, Daniel van der Voort, Guido Wassenaar, Marcel Wassenaar, Jos Wesselman
Client: ProRail, Gemeente Den Haag, VROM, Nederlandse Spoorwegen
Structural engineering, mechanical services, building physics: Grontmij, Houten
Contractor: Strukton Bouw
Area: 20,000 sqm
Completion: 2016
