The project’s intention was to create interior spaces mimicking the original patios while mantaining privacy of these spaces from the other apartments. These patios allowed each apartment to be naturally lit and ventilated. Garden beds where also incorporated at the limits between the interior and the patios in order to incorporate the landscape within the architecture.
This process helped us understand how to treat a valued heritage with awarness and care and the result is an juxtaposition of memory and urban development.
View gallery
C:\Users\AMET\Desktop\Nueva carpeta\FACHADA ANTONIO SOLA DAS_CARTA (1)
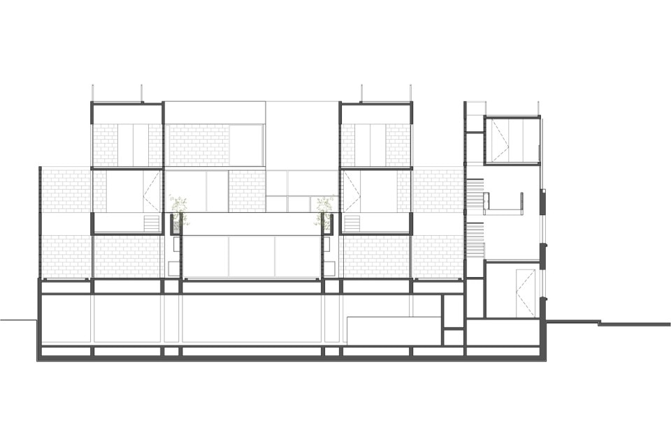
Ambrosi | Etchegaray, Antonio Sola Town-Houses, Colonia Condesa, Mexico City. Elevation
Antonio Sola Town-Houses, Colonia Condesa, Mexico City
Program: residential
Architects: Ambrosi | Etchegaray
Area: 980 sqm
Completion: 2014
