View gallery
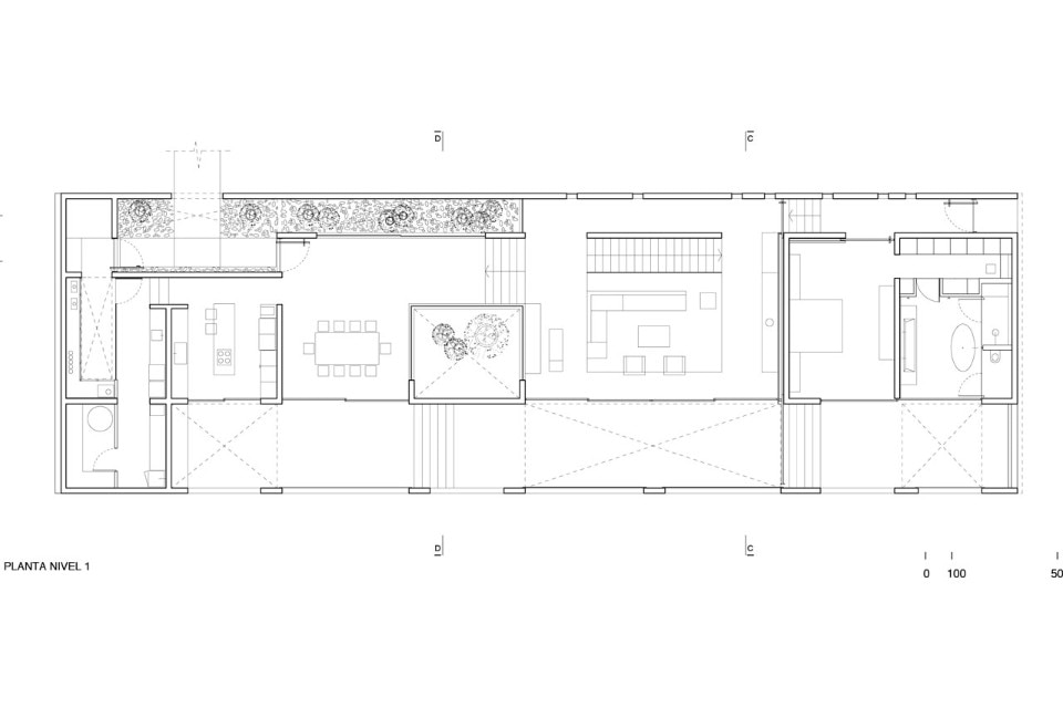
Felipe Assadi and Francisca Pulido , Casa Bahia Azul, Los Vilos, Chile. Ground floor plan
Felipe Assadi and Francisca Pulido , Casa Bahia Azul, Los Vilos, Chile. Basement floor plan
Casa Bahia Azul, Los Vilos, Chile
Program: single-family house
Architects: Felipe Assadi and Francisca Pulido with Alejandra Araya
Completion: 2014
