The preparation of the traditional Algerian food will be a topic in the second area. It will be located in the corner next to the restaurant entrance and bordered by a large curved screen. In this area, a six minute movie will show a mother teaching her daughter (and visitors) about the art of traditional cuisine.
The third area is located next to the main exit and is conceived to promote tourism: it will host the distribution of promotional material and gadgets, the exhibition of handy craft objects and philately on the theme of Expo.
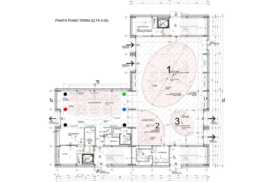
The restaurant is next to the exhibition hall. It can host thirty diners placed at tables. Tasting-food and finger-food will be served. The restaurant perforated ceiling is shaped as a half barrel. Bottom mirrored walls multiply the visual space. A large modern chandelier reinterprets the Arabian archetype.
The first floor is a reserved area for the Commissioner and his guests with offices and space for meetings. The large rectangular room is divided longitudinally with a two-faced bench, with a high backrest, shaped as typically Arabic.
Aligned on the walls, one side will host the VIP reception: a large screen will show, as in an window, all the images simultaneously showed on the elliptical screen on the ground floor. On the other side a selection of local products and dishes will be offer to guests. A patchwork of typical Algerians carpets will fully cover the floor and the bench and rare art objects will be exposed in the wall niches in a very comfortable and special atmosphere.
Algerian Pavilion, Bio Mediterranean Cluster, Expo Milano 2015
Design: Studio De Ferrari Architetti and Buonomo Veglia
General contractor: Bodino Engineering
Area: 850 sqm
Completation: 2015
