Nordest Arquitectura designed its new studio in the old medieval village of Palau-Sator in Girona, Catalonia, inside an old barn probably dating back to 1838.
The building had been renovated into a tourist apartment from 2016, partially removing the original nature of the agricultural structure. Faced with this scenario, Nordest Arquitectura decided to recover the history of the barn and to maintain or eliminate the elements of the last intervention according to their usefulness.
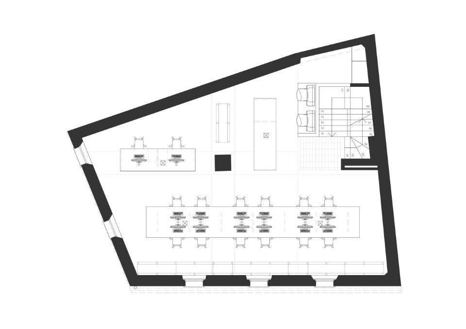
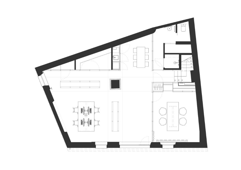
Estudi 1700 project, which received the Premis d’arquitectura de les comarques de Girona award in the interior category, is distributed on two levels. The ground floor houses the public functions – the reception, a meeting room, a multifunctional space and services – distributed in closed or semi-open volumes made of wood and glass structures.
The central part of the passage is connected to the entrance and becomes an extension of the external square thanks to the transparency of the door. The upper floor is intended for team work: a long table occupies most of the space together with the custom-designed furniture and shelves.
The office of Nordest Arquitectura becomes a space where the old and the new meet in a delicate contrast, where the materials of the renovation never actually touch the pre-existing ones: the original bricks and stones are flanked by wooden dividing panels and concrete floor and ceiling, while the joints connecting the slabs highlight the columns of the barn.
- Project:
- Estudi 1700
- Location:
- Palau-Sator, Girona, Catalonia
- Program:
- Office
- Architects:
- Nordest Arquitectura office (Jordi Riembau and Miquel Rusca)
- Contractor:
- Construccions Josep Alsina, SL
- Area:
- 200 sqm
