Mizoun de la Villo is a mountain house located in the village of Ostana in the Occitan valleys, at the foot of Monviso, Italy. The project by Crotti, De Rossi and Dutto is part of the process of regeneration and rebirth of an area counting today 50 people including many families: infrastructures for culture and green tourism – see Lou Pourtoun Cultural Centre – took place with the collaboration of Politecnico di Torino.
This Welfare mountain house includes a medical clinic on the first floor, an artisan bakery and patisserie, wellness areas and a library. With its L-shaped plan and its three floors, the building occupies the remains of old ruins and effectively recreates part of the village fabric.
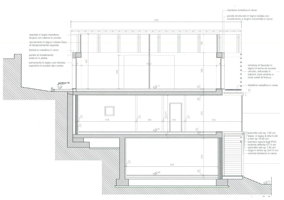
The structure, covered with stone and wooden planks, follows the slope of the ground, taking advantage of the differences in height, and allows large frames – bow windows overlooking the landscape – balconies and brise soleil to emerge on the south facade. On the main level there is a small square-patio as access.
- Project:
- Mizoun de la Villo
- Location:
- Ostana, Valle Po, Cuneo, Italy
- Program:
- Community Welfare structure
- Architects:
- Massimo Crotti, Antonio De Rossi, Luisella Dutto
- Engineers responsible for structures and installations:
- Ing. Fabio Bertorello, Ing. Aldo Baronetto
- Builders:
- Impresa Farm di Rabbone & c. , Savigliano
- Client:
- Comune di Ostana
- Funding:
- Programm a 6000 Campanili, Italian Ministry of Infrastru cture and Transport
- Cost:
- € 425.000
- Area:
- 290 sqm
- Completion:
- 2019
