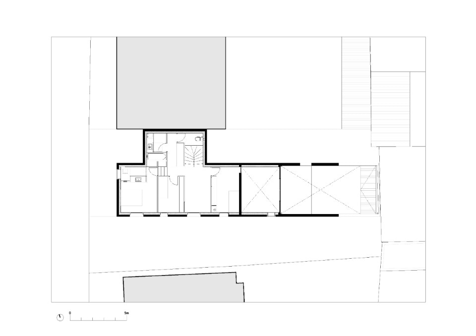
The French studio in Bordeaux More Architecture has designed a 120 sqm house characterised by a longitudinal layout – adapting to the conformation of the site which developes on two levels: the ground floor houses the living area and the first floor the sleeping area. A small additional volume that fits into the longitudinal body contains the staircase and services.
The perimeter load-bearing walls of the concrete house, pierced by large square openings that open up to the city and the surrounding vegetation, act as a fence, delimiting the internal and external space of the house and supporting the sloping pitched roof.
The house volume has a two-storey street front and slopes towards the inside of the lot culminating in a patio; a swimming pool overlooking the sky.
An interweaving of visual axes, different and compentrating functions result in a dynamic organization of the space: the living area on the ground floor shapes up as a linear room that opens at double height in correspondence with the living room and extends outward, gradually decompressing in the rhythmic succession of spaces. On the first floor the children’s rooms and the playroom overlook the garden through large windows and look at each other through internal openings that put them in communication.
The untreated cement on the outside and used for the interior finishes on the floors and ceilings is combined with the wood of the furnishings, windows and the staircases that give warmth and comfort to the living space.
- Project:
- Aly
- Architect:
- More Architecture
- Program:
- House
- Location:
- Bordeaux
- Area:
- 125 sqm
- Completion:
- 2018
