The informal city is first of all a city made of dwellings. The individual urgency to provide for his or her own shelter, often dealt with in a condition of uttermost material deprivation, is the fundamental impulse driving its incremental growth.
Designing a collective or public building within this context means to offer local communities an unusual space, a physical and symbolic place to experimentally enact the dynamics of a possible shared citizenship.
These are the reflections informing Llosa Cortegana Arquitectos’ project for the new SISE Institute, in the densely populated core of the San Juan de Lurigancho neighborhood in Lima – for the records, 70% of the current urban growth of this South-American metropolis relies on unplanned initiatives.
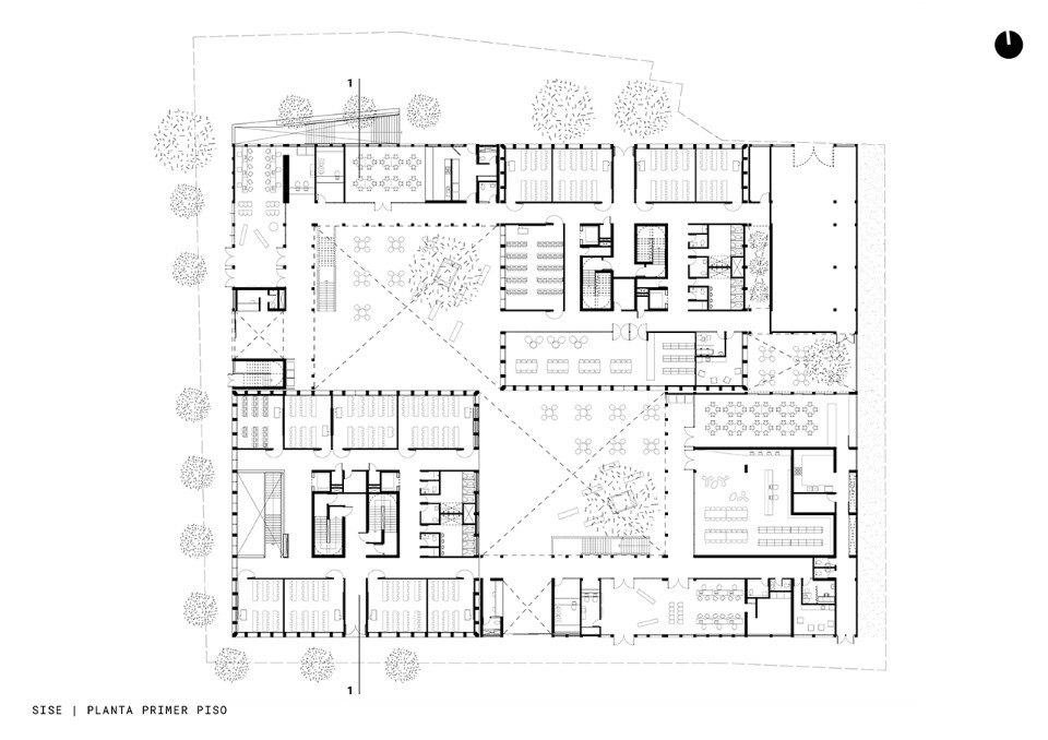
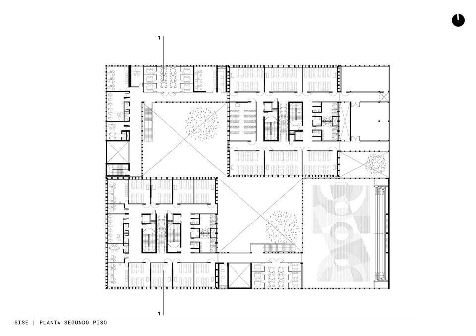
The school complex, whose first block has recently been completed, integrates the main sequence of public spaces of this part of the city, including its central square and a linear park.
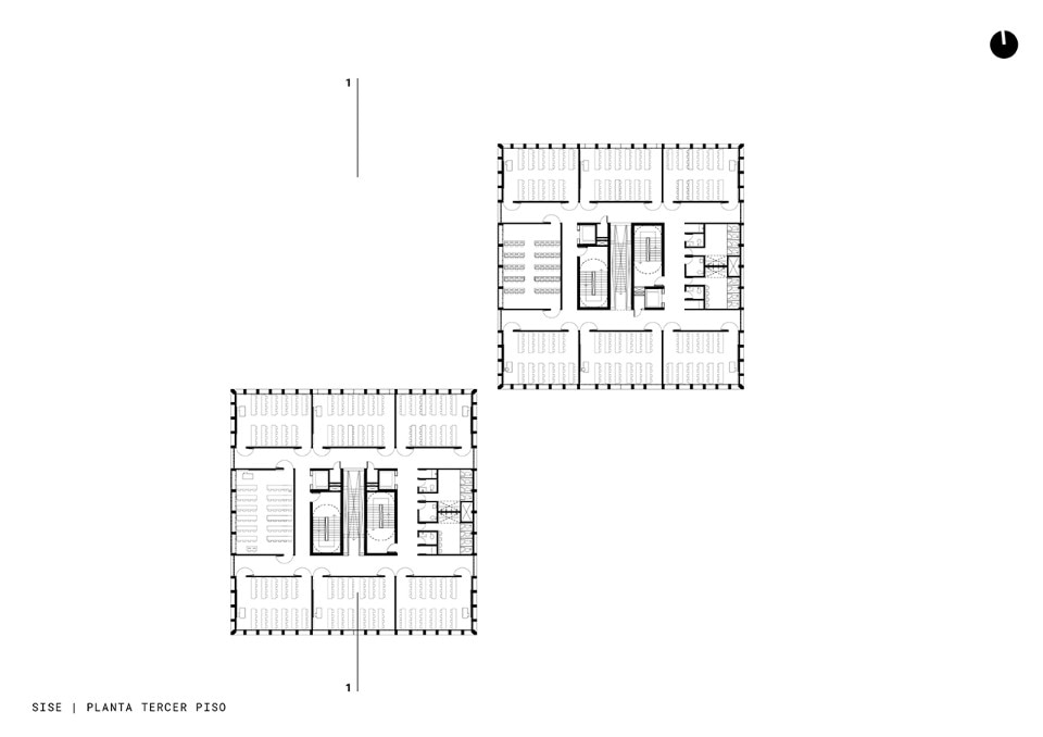
The search for the highest permeability of the ground floor is certainly a crucial topic for this architecture, whose success might be fully measured when the large basement, extending to the entire lot, will be completed. A second block and two patios will be nested within it.
The SISE Institute’s fronts deserve some reflection as much on a technical level as in regards to their expressive qualities. The structural system channels all loads to the building’s edges: elevations are also bearing elements, servant spaces gather in a central core, suspended from above, and the interiors open up into a single, flexible open space.
Fair-faced concrete masonry, lattices of the same material’s prefabricated blocks, partitions painted in contrasting colors: materials and finishes inspired from the context of San Juan de Lurigancho are simplified, organized, systematised on the school’s four fronts, rigorous while not monotonous, in an attempt to transform them from an individual domestic expression into a collective urban imagery.
- Project:
- SISE Institute
- Program:
- private university
- Location:
- Lima, Peru
- Architects:
- Llosa Cortegana Arquitectos
- Partners Llosa Cortegana:
- Patricia Llosa, Rodolfo Cortegana
- Collaborators:
- Julio Malpartida, Pedro Luna, Jose Chipollini, Flore Guichot, Juan Pereyra, Karla Peña
- Landscape design:
- Karen Takano, Ricardo Huanqui (24/7 Arquitectura)
- Completion:
- 2018
