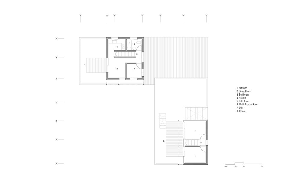
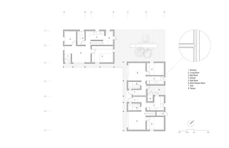
Designed by Korean studio stpmj in Icheon, the Stratum House consists of two separate buildings for three families. Two houses sit on perpendicular to share a front and back yard for social gardens and dining. The unit plans are small yet functionally figured. Living rooms are placed towards South and East for sun exposure and maximized view. Kitchens and rooms are connected to the living room with a stair. On the second floor two buildings have individual terraces for private family activities. The buildings outdoor spaces on each level create a dialogue among sequences penetrating inside and outside of the building into nature.
View gallery
The house seeks a new way of concrete casting method simulating a geologic formation. Concrete works in a combination of cement, water and aggregate. Cement is mixed with water to form a paste, and its properties are strengthened together with aggregates. These pastes wrap and fill aggregates of various sizes and become hardened. The project started with a curiosity about concrete composition, its casting process, and reaction on the results from testing the changes of its constituents.
Above and below: stpmj, Stratum House, Icheon, 2017
Three constraints are applied; water-cement ratio, use of diverse aggregates and different amount of pigment. The change of concrete shape according to the slump value is the first. When the water ratio is increased, the slump value is increased. The concrete forms a shape close to the horizontal. On the other case, the slump value is reduced and the mound is formed with a mass. The second is the variety of texture on exposed concrete surface depending on the ratio of fine to coarse aggregate. The last is the color changes of the surface. With the combinations of these three variables; shape, texture and color, the concrete of each different quality is cast on-site everyday. It allows to have delicately designed divisions of stacked concrete layers showing time differences.
- Structural engineering:
- Centum Engineering
- Contractor:
- ON Architecture
