View gallery
Img.1 Luigi Rosselli
, The new Twin Peaks, Rose Bay, Australia, 2017. Photo Edward Birch and Justin Alexander
Img.2 Luigi Rosselli
, The new Twin Peaks, Rose Bay, Australia, 2017. Photo Edward Birch and Justin Alexander
Img.3 Luigi Rosselli
, The new Twin Peaks, Rose Bay, Australia, 2017. Photo Edward Birch and Justin Alexander
Img.4 Luigi Rosselli
, The new Twin Peaks, Rose Bay, Australia, 2017. Photo Edward Birch and Justin Alexander
Img.5 Luigi Rosselli
, The new Twin Peaks, Rose Bay, Australia, 2017. Photo Edward Birch and Justin Alexander
Img.6 Luigi Rosselli
, The new Twin Peaks, Rose Bay, Australia, 2017. Photo Edward Birch and Justin Alexander
Img.7 Luigi Rosselli
, The new Twin Peaks, Rose Bay, Australia, 2017. Photo Edward Birch and Justin Alexander
Img.8 Luigi Rosselli
, The new Twin Peaks, Rose Bay, Australia, 2017. Photo Edward Birch and Justin Alexander
Img.9 Luigi Rosselli
, The new Twin Peaks, Rose Bay, Australia, 2017. Photo Edward Birch and Justin Alexander
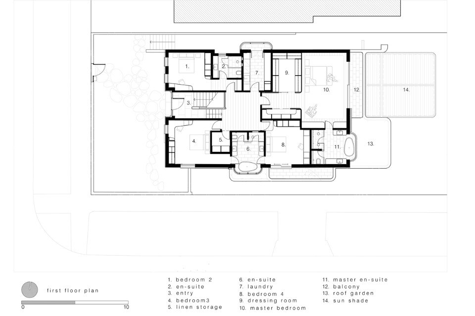
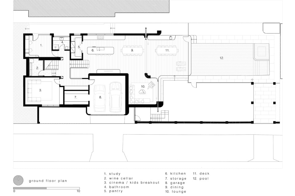
The children’s bedrooms are located under the first, larger, zinc clad gable. The second steeper gable contains the cathedral ceiling of the master bedroom. The double height ceiling of the master bedroom is matched by the soaring ceiling height of the entrance lobby and particularly in the giraffe sized spaces of the kitchen and dining rooms. It was an intentional decision to create this vertical architecture so that it corresponds to the pre-existing Pencil Pines that flank the swimming pool in the garden.
The new Twin Peaks, Rose Bay, Australia
Program: single family house
Design architect: Luigi Rosselli
Project architect: Jane McNeill
Interior designer: Marianna Atlas
Contractor: Grid Projects Pty Ltd
Structural consultant: Rooney & Bye Pty
Joinery: Sydney Joinery
Landscape: Rolling Stone Landscapes and EJM Landscape Construction
Completion: 2017
