View gallery
A two story brise soleil is angled such that as viewers pass by multiple images appear, catching the light differently at different times of the day. The screen proposes a variation of figures that evokes loose, variable associations while still remaining in the realm of affect, giving viewers a free-association. The patterns across the surface and varied interrelationships of depth, angle and shadow from one member to the next reinforce the abstractions they define in one moment and cloud it the next.
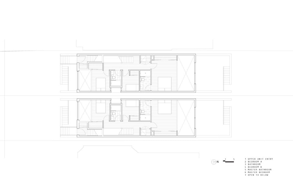
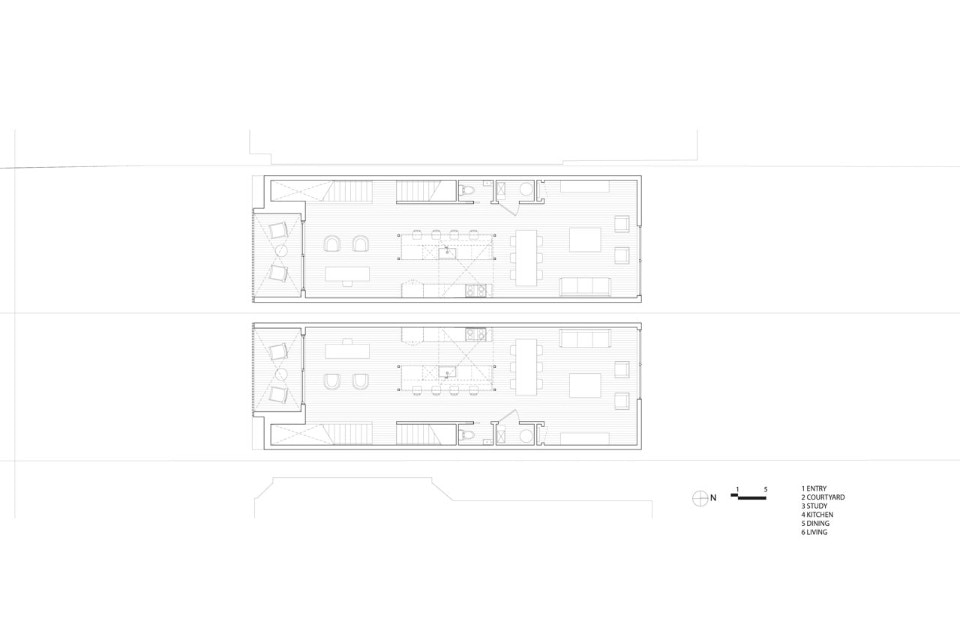
Double Duplex, Toronto
Program: housing
Architect: Batay-Csorba Architects
Area: 325 sqm
Completion: 2016
