View gallery
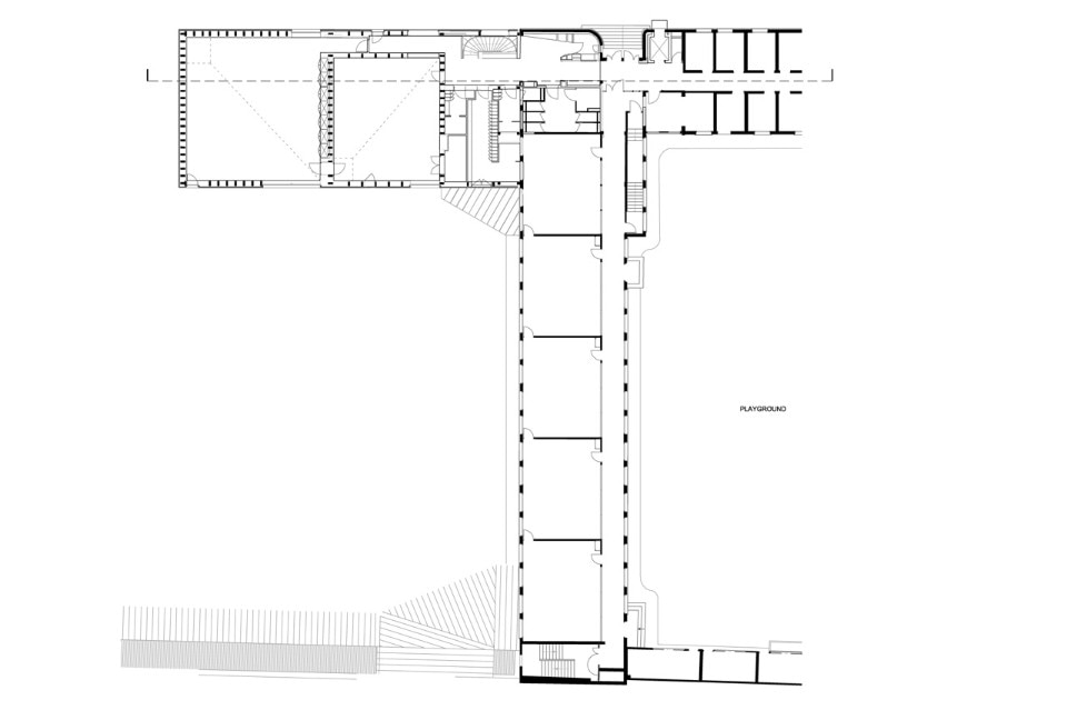
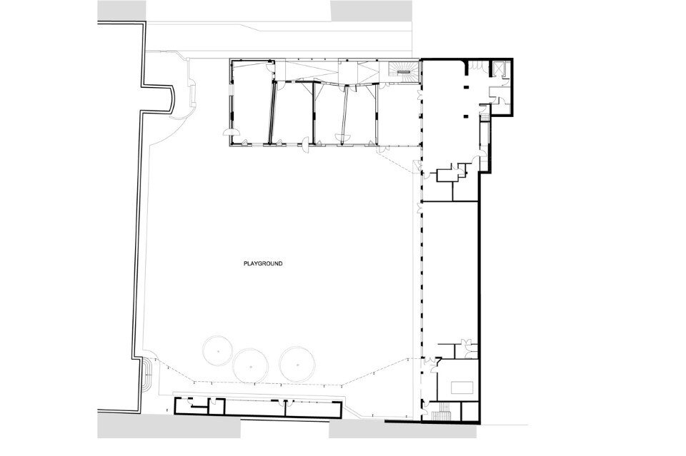
The project replaces a covered section of the Vauban school playground. The building’s volume extends the line of the existing walls of the Lully school building, flanking the entrance passageway at lower and upper ground floor levels. Following the slope of the path, it settles onto the incline of the school playground. The dance centre is spread over two floors. The reception is situated at the entrance to the dance centre. Its location allows for surveillance of the entrance lobby and the entrance to the dance centre.
View gallery
Le Conservatoire, City of Versailles, France
Program: music and dance school renovation
Architects: Joly&Loiret, Architecte Mandataire, Paysage, Hqe
Engineering: Otce
Acoustics: Vincent Hédont
Area: 787 sqm and 300 sqm addition
Completion: 2016
