View gallery
3000_9_1302_planimetric-front_brown-line_PRINT
Henley Haleybrown, Hackney New School, axonometric view
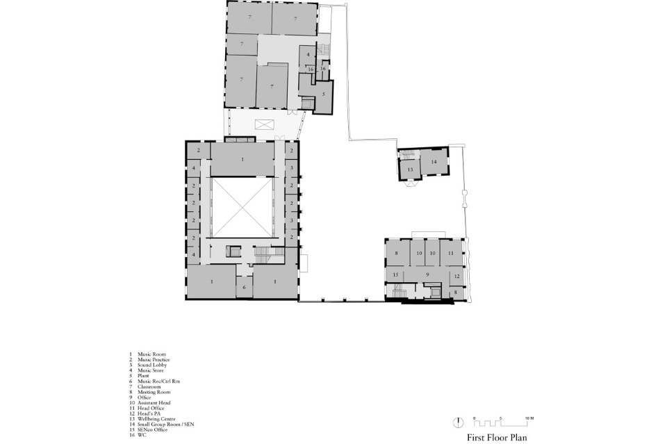
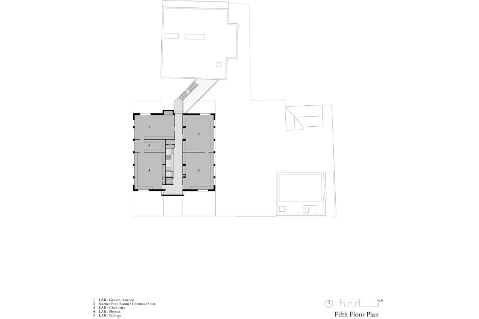
Hackney New School, London
Architects: Henley Halebrown
Contractor: Willmott Dixon
Services engineer: Skelly & Couch
Structural engineer: Pure Structures
Planning consultant: CMA Planning
Building control: MLM
Project canager: Mace
Area: 5,500 sqm
Completion: 2016
