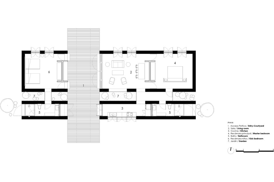
The materials used in this project as key players are compacted soil walls, parota wood indoor and archaeo- logical stone outdoor, accompanied lesser extent of concrete, blacksmithing and tile floors. In short, this house responds to Mexican haciendas in contemporary time with an innovative and effective construction system.
Casa Candelaria, San Miguel, Mexico
Program: single-family house
Architects: Cherem Arquitectos – Abraham Cherem, José Antonio Aguilar
Design Team: Daniel Huerta + Cristian Noriega
Construction: Cabrera y Asociados
Landscape: Entorno
Area: 1500 sqm
Completion: 2016
