View gallery
Aidlin Darling Design, Brecon Estate Winery, Paso Robles, California. Cantilevered deck at dusk
Aidlin Darling Design, Brecon Estate Winery, Paso Robles, California. Facade, after renovation
Aidlin Darling Design, Brecon Estate Winery, Paso Robles, California. Tasting Room entry
Aidlin Darling Design, Brecon Estate Winery, Paso Robles, California. View from tasting room to entry footpath
Aidlin Darling Design, Brecon Estate Winery, Paso Robles, California. Members lounge with overlook to production area
Brecon Market Drawings - Plans
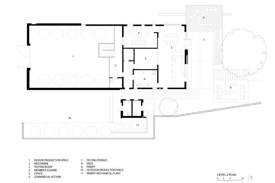
Aidlin Darling Design, Brecon Estate Winery, Paso Robles, California. Floor plan
Aidlin Darling Design, Brecon Estate Winery, Paso Robles, California. Lanscape connections scheme
Brecon Estate Winery, Paso Robles, California
Program: renovation
Architects: Aidlin Darling Design
Project team: David Darling, Peter Larsen, Katie Stuart
Client: Brecon Estate
General contractor: Specialty Construction Inc.
Structural engineering: Taylor & Syfan
Electrical engineering: Thoma Electric
Mechanical engineering: Brummel, Myrick & Associates
Civil engineering: North Coast Engineering
Landscape: Madrone Landscapes
Area: 1,800 sqm
Completion: 2016
