View gallery
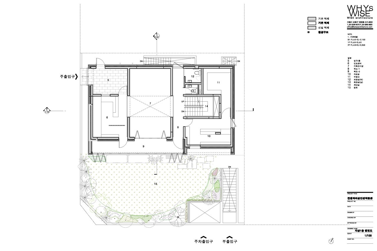
Wise Architecture, Museum of War and Woman’s Human Rights, Seoul, Korea. Grund floor plan
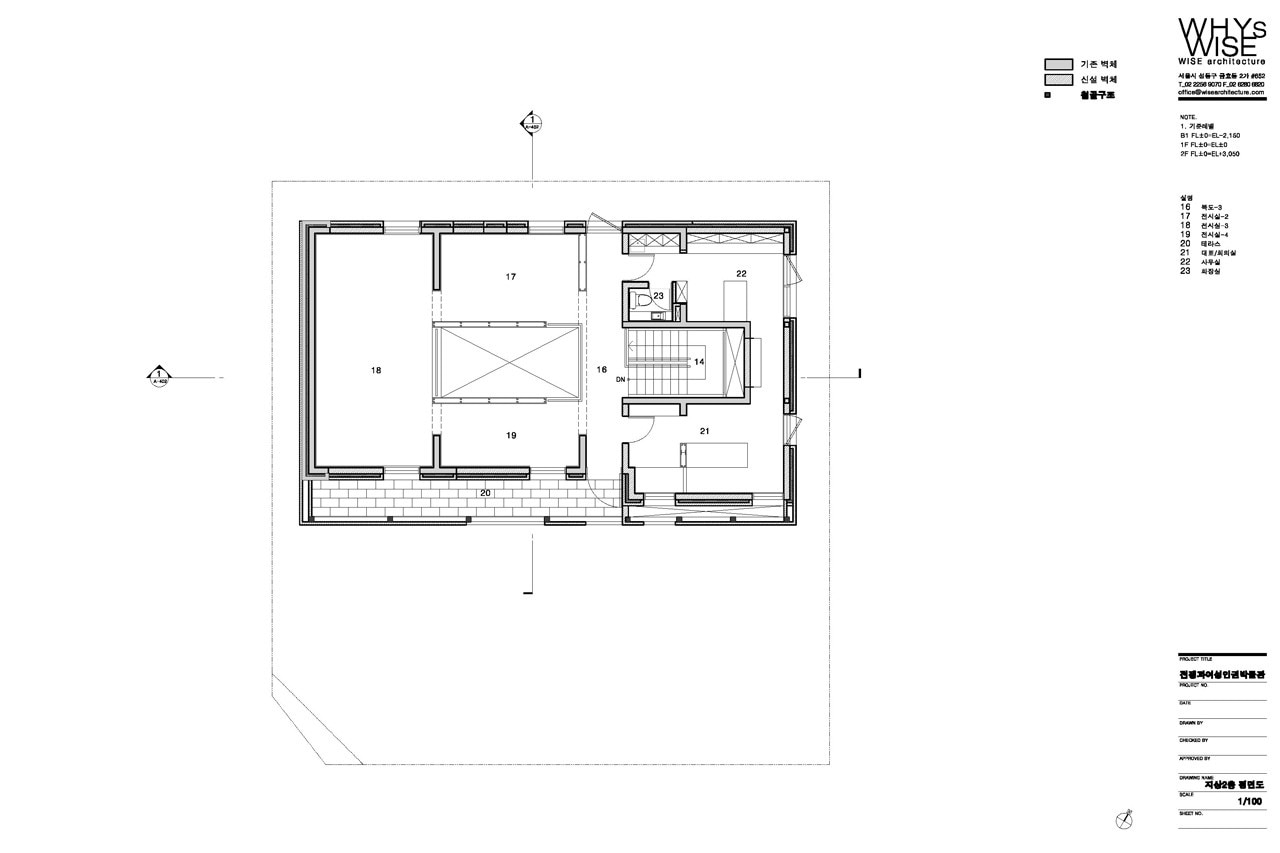
Wise Architecture, Museum of War and Woman’s Human Rights, Seoul, Korea. First floor plan
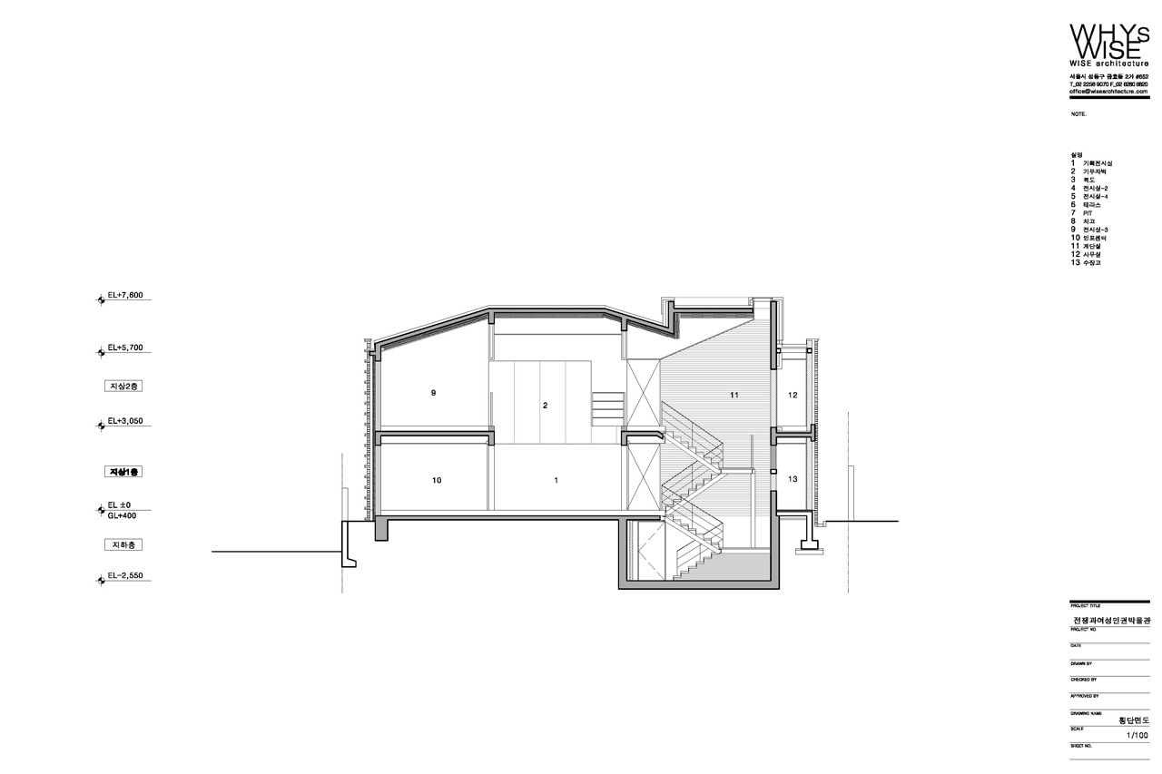
Museum of War and Woman’s Human Rights, Seoul, Korea
Program: museum
Architects: Wise Architecture
Project team: Sook Hee Chun, Young Chul Jang, Jiyong Park, Kuhyeon Kwon, Aram Yun
Area: 143.80 sqm
Completion: 2012
