results
No results
Please enter a long search term
The Jewel Box
Fraher Architects lifted a basement and ground floor within a townhouse in London from a dark and disjointed flat, into a light, spacious garden home with secret garden study.
The brief called for complete renovation and extension to provide a dining area and garden room. This Grade II listed building is located in the prominent Colebrooke row conservation area.
Conceived as a series of jewelled boxes carefully inserted into the existing fabric, the proposals open up and revitalise what was a series of dark disjointed spaces. Timber and concrete have been combined in a simple palette of materials that wrap around the existing fabric, inviting the user through the space and into the garden. The remaining period architectural features are retained and celebrated whilst the rear addition utilises a double canted wildflower roof to bounce light deep into the floor plate.
Fraher Architects, The Jewel Box, Islington, London
A hidden garden study provides a place of contemplation overlooking the south facing courtyard garden.
The double canted wildflower roof creates a rich bio diverse habitat for local bees and butterflies. The matting is a wildflower and sedum mix which maintains colour to the roof throughout the year. The rainwater collected on the roof is carried down to a 2000 litre storage tank beneath the garden, which feeds an irrigation system that waters the garden and the roof when required.
From the moment you enter the building, the resin/concrete floor guides you through the living spaces into the garden. The design intends to suck the garden into the building and push the living space out into the private sunken garden.
View gallery
SHARE
PIN IT
SHARE
PIN IT
SHARE
PIN IT
SHARE
PIN IT
SHARE
PIN IT
SHARE
PIN IT
SHARE
PIN IT
SHARE
PIN IT
Fraher Architects, The Jewel Box, Islington, London
SHARE
PIN IT
Fraher Architects, The Jewel Box, Islington, London
SHARE
PIN IT
Fraher Architects, The Jewel Box, Islington, London
SHARE
PIN IT
Fraher Architects, The Jewel Box, Islington, London
SHARE
PIN IT
Fraher Architects, The Jewel Box, Islington, London
SHARE
PIN IT
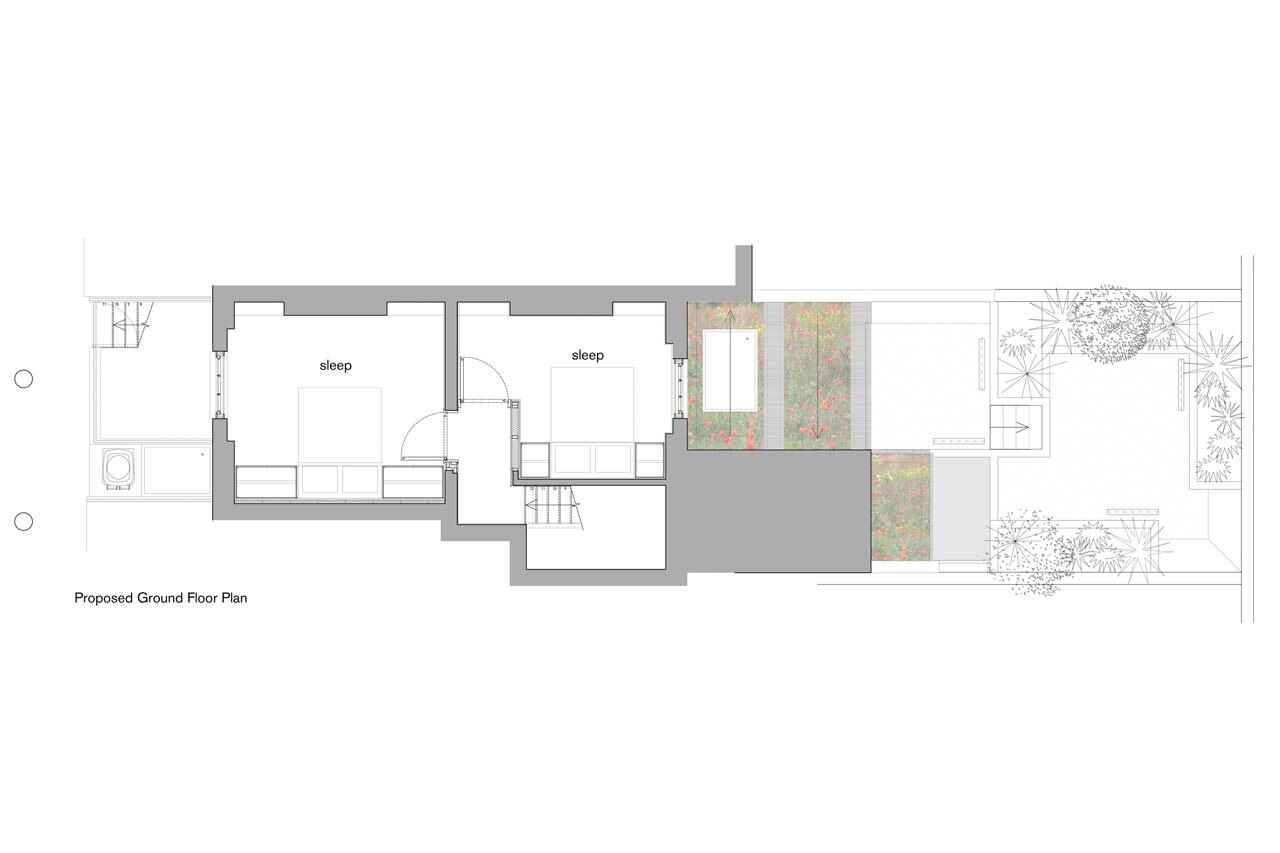
Fraher Architects, The Jewel Box, Islington, London. Ground floor plan
SHARE
PIN IT
Fraher Architects, The Jewel Box, Islington, London. Lower gorund floor plan
SHARE
PIN IT
Fraher Architects, The Jewel Box, Islington, London. Sketches
SHARE
PIN IT
The Jewel Box, Islington, London Program: residential, refurbishment and extension Architect: Fraher Architects Contractor: Candour Interiors Ltd Engineer: Elliot Wood Associates Client: Private Client