View gallery
\\saab7\share\project_c\nacree\10実施設計\4Fplan 4F (1)
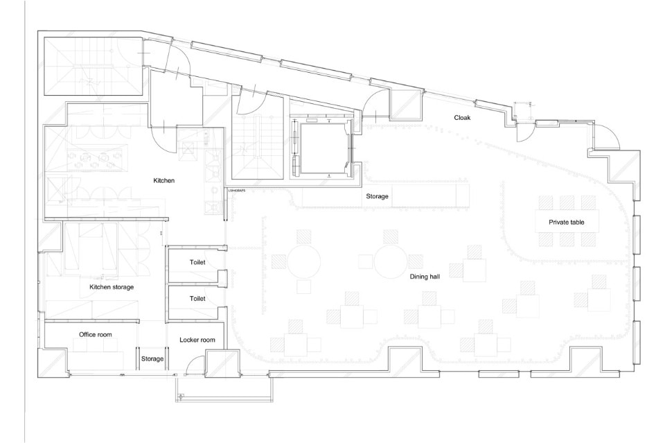
Kengo Kuma Associates, Nacrée restaurant, ground floor plan
The main feature of this space are the suspended flowers, which are arranged in cylinders made of wooden bar and acrylic. Kengo Kuma’s aim was to create a gentle atmosphere by using an unconventional element of architecture.
Nacrée restaurant, Miyagi, Japan
Program: restaurant
Architect: Kengo Kuma Associates
Completion: 2017
