View gallery
Z:\04 Comunicación\01 Publicaciones\01 Proyectos\11 Bellavista\03_PDF para enviar\CAD\Bellavista_master_final6 Ground Floor (1)
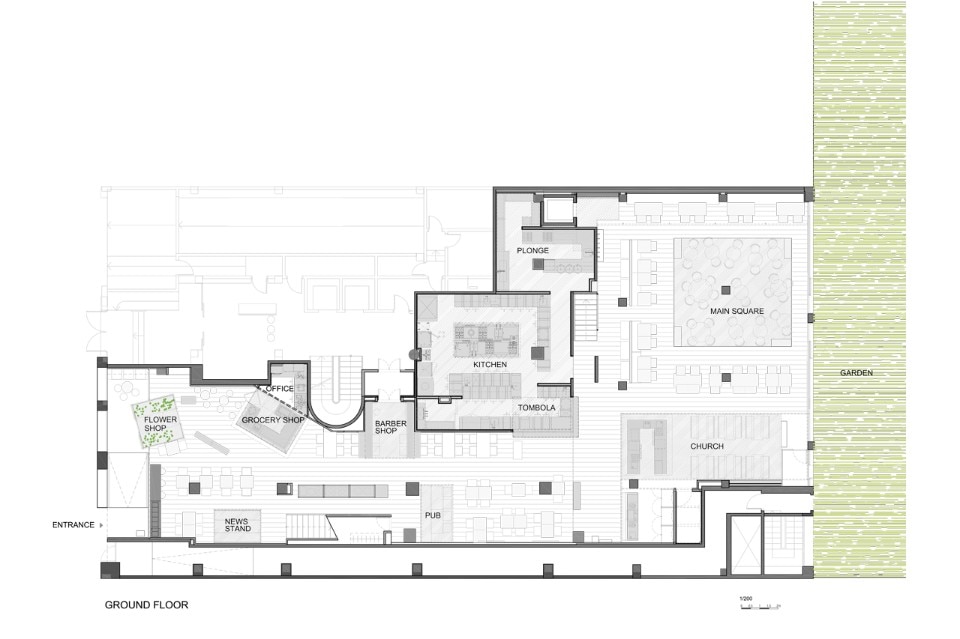
El Equipo Creativo, Bellavista del Jardín del Norte, plan
Different elements in the form of metal kiosks guide you through the space until you reach the large garden located at the end of the space. These elements are an abstraction of the festive elements in village towns: a street adorned by a ceiling of flowers and lights that accompanies you to the plaza (main square). This plaza overlooking the garden becomes the icing on the cake as it hosts an open space underneath a sky of fireworks. The final result of the design creates a sensation of a familiar setting for many Spanish people: going back home for the yearly village feast and enjoying homemade food. Each corner is as surprising as it is familiar.
Bellavista del Jardín del Norte
Program: restaurant
Architect: El Equipo Creativo – Oliver Franz Schmidt, Natali Canas del Pozo, Lucas Echeveste Lacy
Design team: Narcís Font, Anna Martínez Salom, Blanca Lora-Tamayo, Mauricio García, Néstor Veloso, Cristòfol Tauler
Lighting design: BMLD Architectural Lighting Design
Area: 1,000 sqm
Completion: 2016
