View gallery
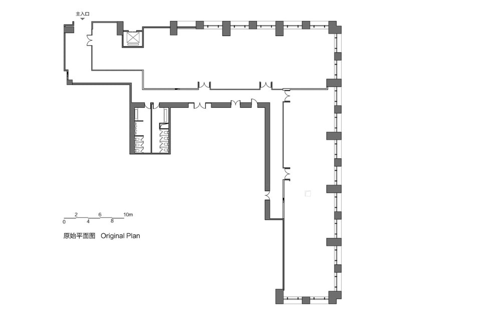
A winding corridor is defined by continuous curved walls, far from traditional straight corridors, that stimulates the children’s desire to explore. Curved walls differentiate musical classroom, reception area, cooking area, tea classroom, play area and so on. Children will associate some rooms as dark closed valleys, others as transparent hills, with playful holes on the walls that can hold up to two children for play. The musical classroom is sealed by curved glass to ensure sound insulation, while maintaining an open teaching environment. The tea classroom and the cooking area are separated by reverse-arch walls, which are also tools for children to stride, rest, and play.
View gallery
Rockery for play, Chaoyang District, Beijing, China
Program: educational space
Archtiects: Archstudio
Team: Han Wen-Qiang, Song Hui-Zhong, Li Yun-Tao
Client: Poly WeDo Art Education
Area: 770 sqm
Completion: 2017
