View gallery
The design starts from the concepts of ‘primitive’ combined to ‘technology’, and evolves into the geometries of molecular aggregation – from triangular to polygonal and from spherical to cones. Far from the traditional pharmacy counter, the core space is represented by a laboratory table, where pharmacists interacts with customers. The customer experience is enhanced by open dispensing areas, iPad embedded consulting service system and interactive information aggregation functions. The laboratory looks like a forest with a wooden table and hanging indoor plants that grow profusely. The idea underneath is to associate and transform medicine and health care into a healthier hub.
View gallery
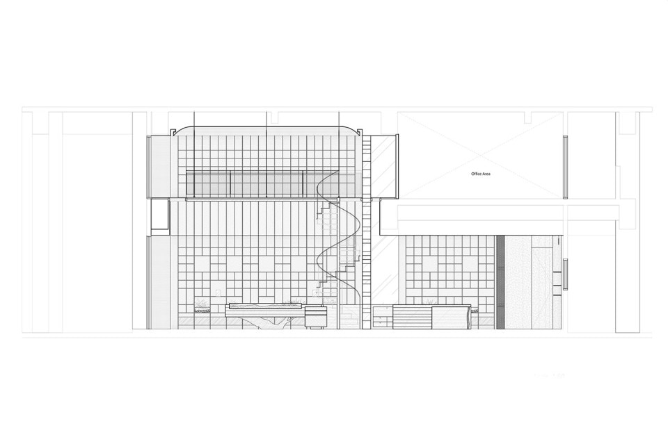
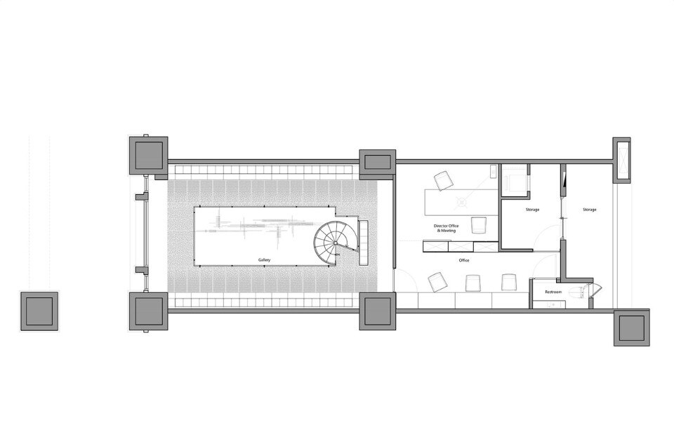
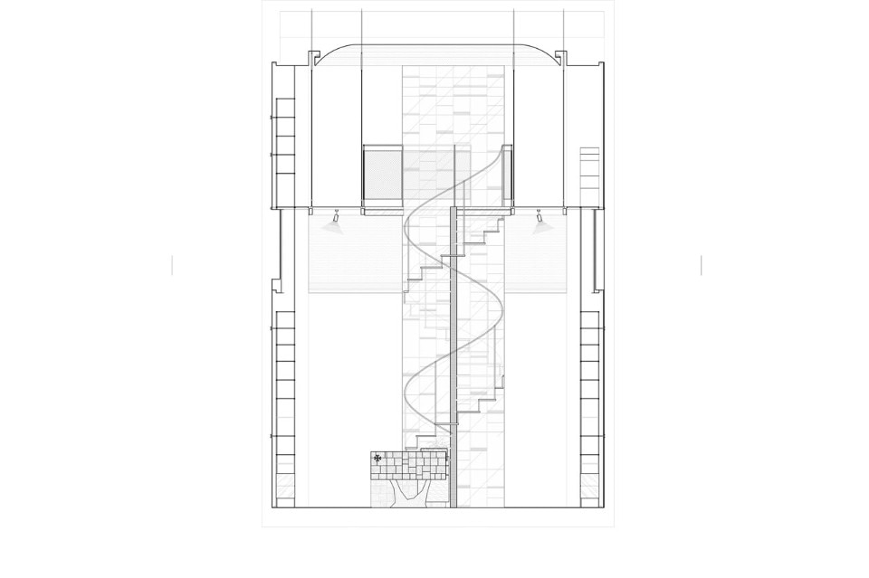
Molecure Pharmacy, Taichung, Taiwan
Program: pharmacy
Design: Nic Lee, Richard Kuo, Kate Chang – Waterfrom Design
Client: Molecular pharmacy
Area: 120 sqm
Completion: 2017
