Once grown, roof greenery softens the volume, establishing a connection with the leafy surroundings and creates pleasing views from the floors above. From the garden, the roof trenches are out of sight, giving the immediate effect of a simple concrete slab, which contrasts with the texture of the original building.
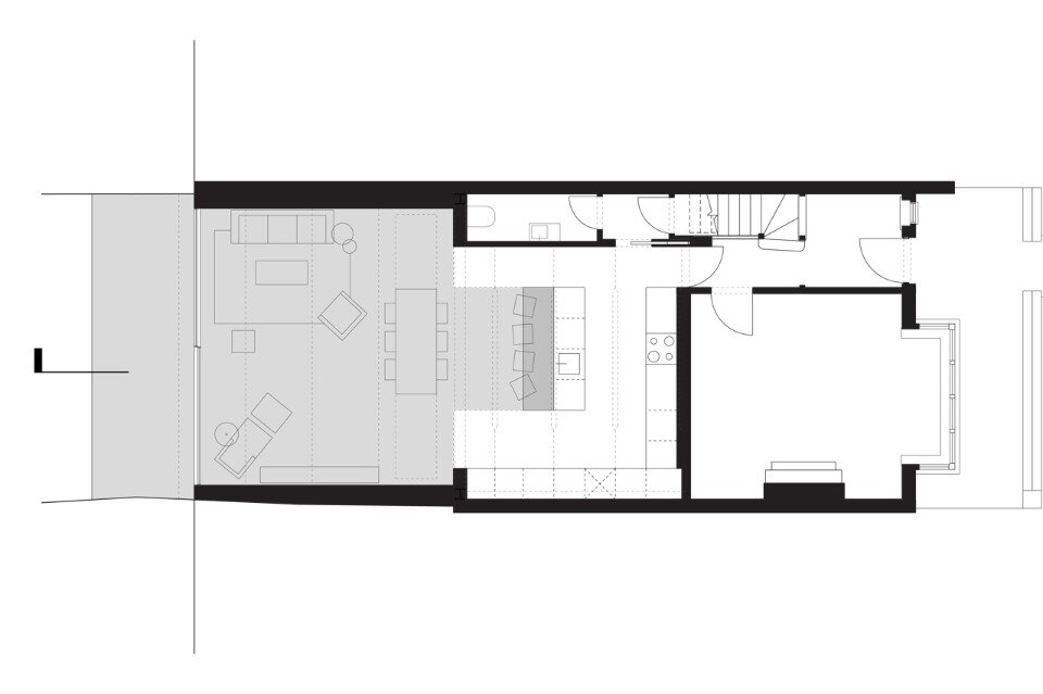
Slab House, London, UK
Program: house renovation
Architects: Bureau de Change Architects
Team: Billy Mavropoulos, Katerina Dionysopoulou
Area: 50 sqm
Engineering: FTF Designs Ltd.
Construction: Stec construction
Landscape: Joh Bates Studio
Completion: 2016
