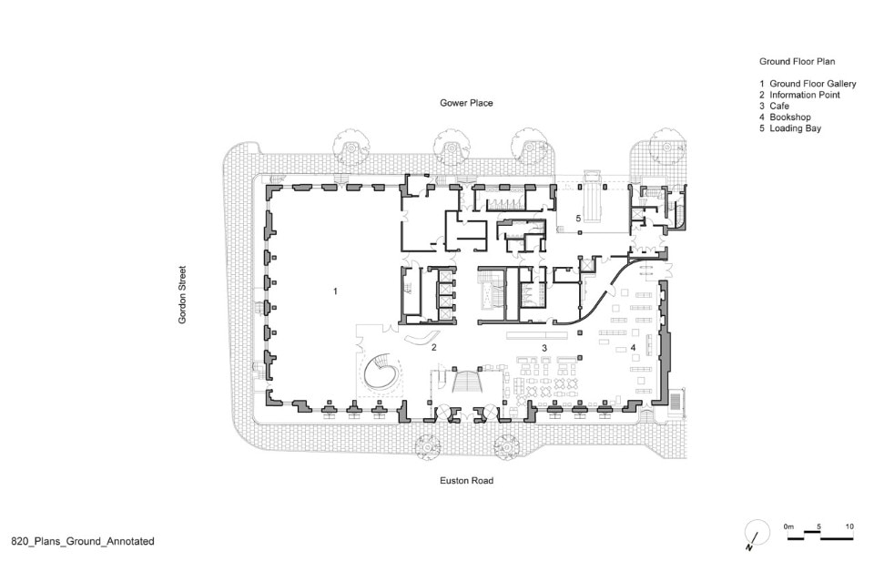
A dynamic new steel staircase has been introduced between the ground and second floors to enhance circulation between floors and entice visitors up to the expanded first floor gallery spaces and destination restaurant on the second floor.
The 17.5 metric ton steel structure is sculpted into a flowing, swirling form, enticing the eye and drawing people up through the building. The finished staircase is shot-blasted on the outside and the inside faces, which are closer to the public, were sprayed with a cold zinc and hot stainless steel solution that was hand-polished by one individual.
A thematic exhibition gallery has been created on the first floor, replacing administrative offices. It completes a loop on the first floor, allowing visitors to circle around the building, linking the Medicine Man and Medicine Now permanent galleries to the new youth events space. The latter has been added as a purpose-built flexible contemporary studio for teenagers to creatively engage with science and art offering both hi-tech digital technology and low-tech modelling and making equipment. It brings together elements of common rooms, bedrooms, music studios and laboratories to create a unique environment for participatory learning.
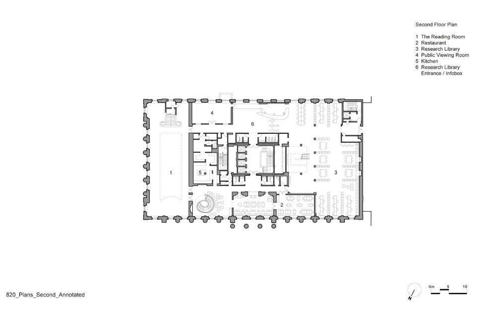
The Wellcome Library on the second and third floors has been reconfigured to improve circulation and create a directly-accessible public browsing zone encompassing the Reading Room and research library.
The Reading Room has been transformed by AOC Architects into a space that bridges the gap between Wellcome Collection’s events and exhibitions programme and the world-class Library, archive and object collections.
The Research Library on the upper floors has received a completely new entrance and reception desk. A roof light above the new double-height space that houses the new stair links the second and third floors of the library to create an entirely interconnecting space across floors. A new warmer colour palette, improved lighting and user-friendly way finding helps to create a cosy and welcoming environment for the library users and staff.
On the fifth floor, The Hub is an area dedicated to longer term research for groups of academics, artists and other creative minds to collaborate on interdisciplinary projects exploring medicine, health and well-being.
View gallery
C0112127 Dynamic staircase, Wellcome Collection.
00820-A-S-GR_option B.dgn
00 FINAL_B
01 FINAL_B
02I-1
Wellcome Collection, London
Program: exhibition centre
Architects: Wilkinson Eyre Architects
Budget: £17.5m
Completion: 2015
