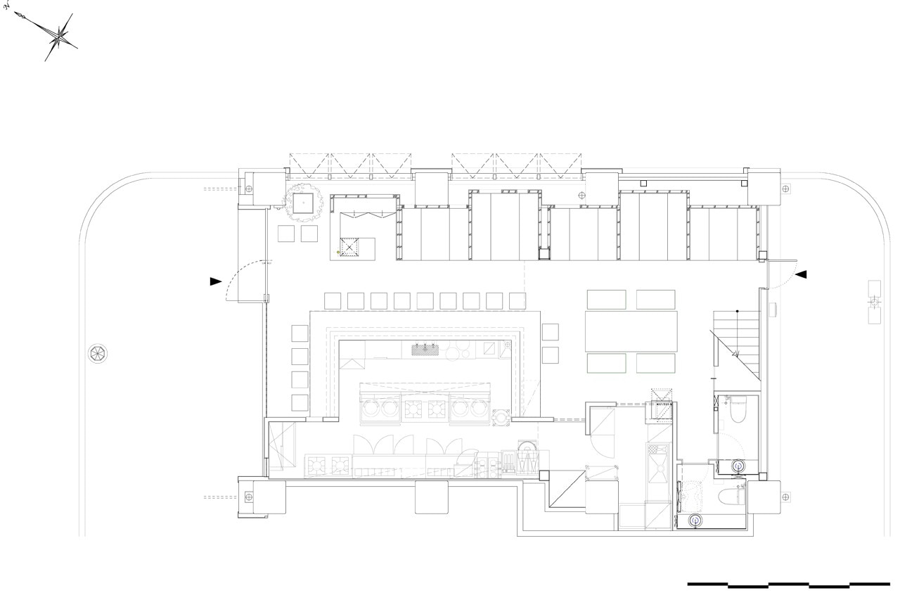
The material used are steel door and hardened glass wall as its exterior, decorated only with the shop logo in simple-beauty way. There are different shapes of triangle roofs inside and each area under the roof is like a dining room for each customer. Yet one side of the cell is opened to connect with the entire space and furthermore, with the community.
The project has been shortlisted at the fifth edition of the Restaurant & Bar Design Awards.
View gallery
Shyo Ryu Ken,Kyobashi, Osaka, Japan
Program: restaurant
Architects: Stile (Ietsugu Ohara)
Clients: Kihara
Completion: July 2, 2013
